3-комн. квартира на ул. Ленина, 91

Идентификатор: 477460   Дата обновления: 27-10-2025

836
Показать на карте

Дополнительная информация

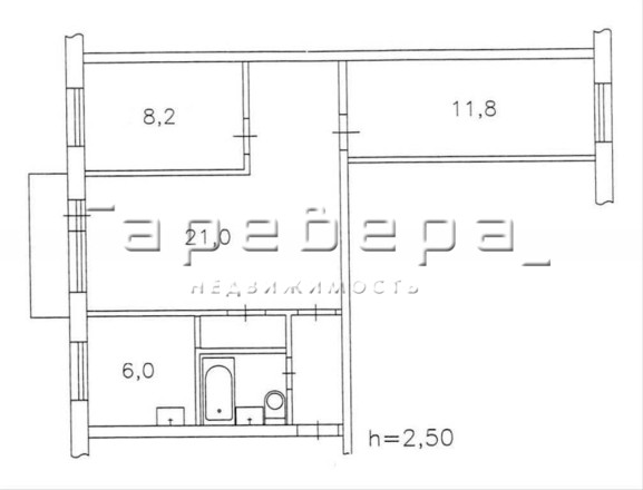
  • Описание: Предлагаю купить 3-комнатную квартира в самом центре города. Комфортный 2 этаж. Сделан хороший ремонт. Кухня 6 кв.м.,плита электрическая. Балкона нет. Сан.узел в кафеле, совмещен. Только сделан косметический ремонт.
    Инфраструктура: Хорошая транспортная развязка, много парковочных мест. Рядом с домом остановка общественного транспорта, с которой можно уехать в любую точку города. Рядом с домом находится лицей № 2, гимназия № 2, детский сады. Стадион Локомотив, Бассейн Спартак, Академия борьбы, академия футбола, два корпуса Красноярский государственный университет имени Астафьева. Аграрный университет. Сибирский государственный университет науки и технологий им Решетнева.. Рядом расположилась красивая набережная р.Кача для пеших прогулок. Рядом с домом есть все необходимое для комфортного проживания — поликлиники, почтовое отделение, множество магазинов, супермаркетов, салонов красоты и спортивных комплексов.

Актуальные новости про недвижку в нашем телеграм-канале: ПРОнедвижку

Похожие квартиры

По цене
По площади
По расположению