3-комн. квартира на пр-т Мира, 3

Идентификатор: 477716   Дата обновления: 18-02-2026

1042
Показать на карте

Дополнительная информация

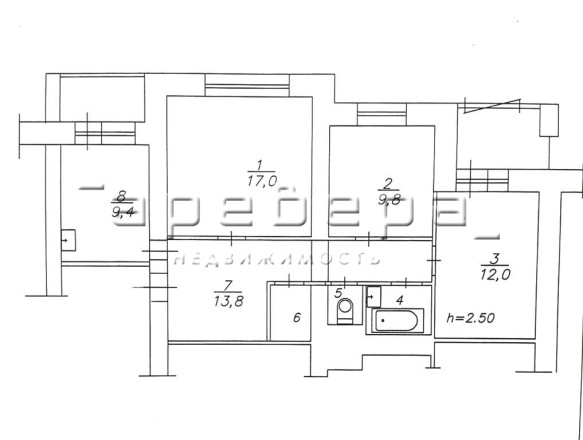
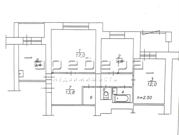
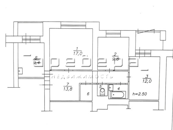
  • Описание: Предлагается к продаже просторная уютная , светлая ,теплая 3 комнатная квартира в кирпичном доме в историческом центре города напротив Большого концертного зала (БКЗ). Кирпичные дома отличаются своей долговечностью, отличной звуко- и теплоизоляцией, гарантия качества и комфорта . В такой квартире всегда будет тепло зимой и прохладно летом. Квартира обладает удобной планировкой, позволяющей максимально эффективно использовать пространство: три раздельные комнаты, кухня 9.4 м2, раздельный санузел , две лоджии. Все окна квартиры выходят во двор.
    Придомовая территория: Спокойный тихий двор с современной детской площадкой, предусмотрена парковка во дворе за шлагбаумом, всегда есть парковочные места
    Инфраструктура: Центр города это возможность быть в шаговой доступности от всех ключевых объектов инфраструктуры: театры, музеи, лучшие рестораны и кафе, торговые центры, университеты, парки и скверы все это у вас под рукой! Отличное место для комфортной жизни в городе. Квартира идеально подойдет для семей с детьми, студентов и всех, кто ценит комфорт и удобство жизни в центре города. Не упустите свой шанс стать обладателем этой замечательной квартиры! Звоните прямо сейчас, чтобы договориться о просмотре.
    Условия продажи: Квартира без обременений, взрослые собственники, подходит под все виды расчета. Сопровождение сделки на всех этапах . Просмотры по договоренности. Принимаем предложения по цене. Звоните, отвечу на все вопросы.

Актуальные новости про недвижку в нашем телеграм-канале: ПРОнедвижку

Похожие квартиры

По цене
По площади
По расположению