3-комн. квартира на ул. Энергетиков, 42

Идентификатор: 478147   Дата обновления: 30-12-2025

588
Показать на карте

Дополнительная информация

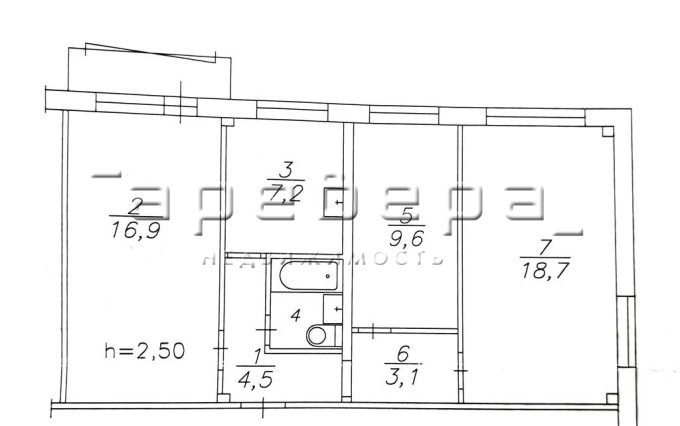
  • Описание: Предлагаю купить полноценную трехкомнатную квартиру на комфортном третьем этаже в Энергетиках Ленинский район. Все комнаты раздельные, совмещенный санузел. Застекленный балкон. Квартира полностью под ремонт.
    Придомовая территория: Тихий спокойный двор с зелеными насаждениями. Есть достаточное количество парковочных мест.
    Инфраструктура: В пешей доступности Д/С №279, С/Ш №44, остановки общественного транспорта, магазины, банки и другие объекты социального назначения.
    Условия продажи: Документы готовы к продаже, подходит под любой расчет. Без долгов и обременений

Актуальные новости про недвижку в нашем телеграм-канале: ПРОнедвижку

Похожие квартиры

По цене
По площади
По расположению