4-комн. квартира на ул. Свердловская, 21а

Идентификатор: 478198   Дата обновления: 08-04-2026

1031
Показать на карте

Дополнительная информация

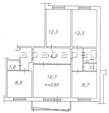
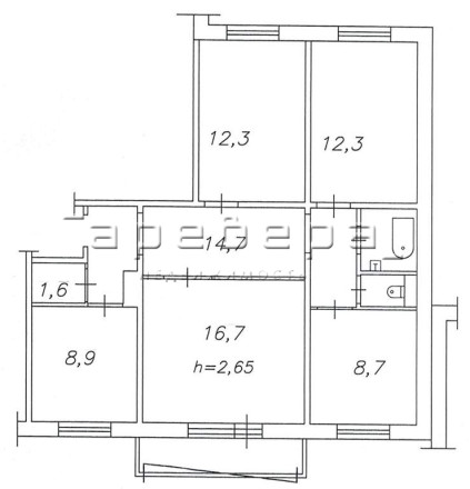
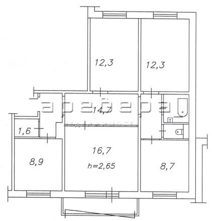
  • Описание: Предлагаю к продаже 4-х комнатную квартиру стандартной планировки в 2-х подъездном доме по адресу: ул. Свердловская, д. 21 «А». 2 спальни по 12, 3 кв.м., одна из комнат — 8,9 кв.м., гостиная — 16,7 кв.м., кухня - 8,9 кв.м., есть кладовка. Туалет и ванная раздельные, в кафеле. По всему коридору удобная встроенная система для хранения вещей. Сделан хороший ремонт по индивидуальному проекту. Потолки: частично натяжные, частично разноуровневые. В прихожей, на кухне и на балконе покрытие пола — керамогранит, в комнатах - ламинат и пробка. В квартире остается: кухонный гарнитур, варочная панель, посудомоечная машина, в гостиной остаются книжные встроенные шкафы, а также в квартире остаются кондиционер и водонагреватель. В доме своё ТСЖ, своя придомовая территория с детской площадкой, автостоянкой для жителей со шлагбаумом, чистый подъезд.
    Инфраструктура: В районе хорошо развитая инфраструктура: в шаговой доступности детские сады, школа, магазины. Транспортная доступность в любой район города.
    Условия продажи: В квартире два совершеннолетних собственника. Нет обременений и долгов, чистая продажа. Вся цена в договоре.

Актуальные новости про недвижку в нашем телеграм-канале: ПРОнедвижку

Похожие квартиры

По цене
По площади
По расположению