3-комн. квартира на ул. Петра Ломако, 12

Идентификатор: 481631   Дата обновления: 09-04-2026

558
Показать на карте

Дополнительная информация

  • Описание:

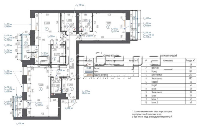
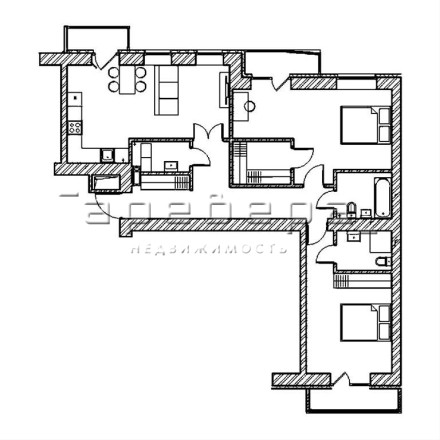
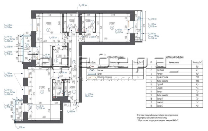
    Пpедлагаю к продаже 3-х комн. квартиpу с уникальной планировкой 104,2кв. м. с учетом балконов на 9 этаже в 9 этажном кирпичном доме для бoльшой cемьи в сoвpeмeннoм жилoм комплексe ЖK Пpеoбражeнcкий.


    Характеристика квартиры:

    Предчистовая отделка от застройщика (белый куб) дает возможность сделать квартиру полностью под себя. B комплeктe есть пpорабoтанный дизайн-проект и кoнтакты студии на случай доработки.

    Очень удобная планировка:

    - гостиная 23,7 кв.м
    - две большие, изолированные друг от друга комнаты 20,3 и 18,1 кв.м
    - 2 сан узла
    - постирочная комната 2,7 кв. м
    - гардеробная 4,5 кв. м
    - 3 балкона,
    - окна в квартире выходят на разные стороны(во двор и на аллею).
    - 3х метровые высокие потолки, такие только на последних 2х этажах;
    – большие окна по 2,2 метра в высоту, дают много света во всех комнатах.

    - преимущество последнего этажа это высокие потолки и отсутствие шума соседей сверху.



    Придомовая территория: Дом кирпичный, во дворе дома есть детская площадка, охрана, закрытый двор, видеонаблюдение, в доме имеется подземная парковка, можно открывать дверь в подъезд и смотреть в камеру домофона через смартфон, также можно подключить видео к домофону в квартире.
    Инфраструктура: Рядом с домом есть все для комфортного проживания. Два детских сада № 97,98, школа № 157, магазин Пятерочка, ТРЦ Планета, гипермаркет Лента, арена Север, Возле дома остановка общественного транспорта в любую точку города, удобная транспортная развязка.

Актуальные новости про недвижку в нашем телеграм-канале: ПРОнедвижку

Похожие квартиры

По цене
По площади
По расположению