2-комн. квартира на ул. Апрельская, 7

Идентификатор: 481801   Дата обновления: 24-11-2025

228
Показать на карте

Дополнительная информация

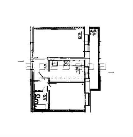
  • Описание: Продается стильная 2-комнатная квартира! Не упустите уникальную возможность стать владельцем уютной 2-комнатной квартиры в современном жилом комплексе с закрытой дворовой территорией! Этот новый монолитно-кирпичный дом расположен в развивающемся районе по улице Апрельской, предлагая все условия для комфортной жизни. ?Особенности квартиры: • Продуманная планировка: Две изолированные комнаты и большая кухня-гостиная создают комфортные условия для жизни семьи или работы из дома. • Свежий ремонт: В квартире выполнен качественный ремонт с использованием надежных материалов. Санузел отделан керамогранитом от Kerama Marazzi, а в интерьере использована практичная мебель от IKEA. • Современная бытовая техника: В квартире остаются все необходимые приборы, включая микроволновую печь Gorenje, зерновую кофемашину De'Longhi, стиральную машину Samsung и робот-пылесос Xiaomi.
    Придомовая территория: ?Безопасность и комфорт: • Закрытая территория: Видеонаблюдение, консьерж и закрытый двор под шлагбаум обеспечивают ваш комфорт и безопасность. • Двор с удобствами: Спортивные площадки и детские игровые зоны создают идеальные условия для активного отдыха на свежем воздухе.
    Инфраструктура: • Все необходимое рядом: В шаговой доступности магазины, аптеки, торговый центр «Метро», «Пятерочка» и рынок автозапчастей. • Удобная транспортная доступность: Остановка «Образцово» с трамвайными (№2, 5, 6) и автобусными (№9, 61, 78) маршрутами позволит легко добраться в любую точку города. • Будущее для семей: В ближайшее время откроются новая школа и детский сад, что сделает район еще более привлекательным для молодых семей. ?Для активного отдыха: • Спорт и развлечения: В районе находятся теплые бассейны и бани с закрытой территорией «Сибирские термы», а также парк «Сибсталь» с прекрасным озеленением и прогулочными зонами.
    Условия продажи: • Помощь в ипотеке: Мы поможем вам с оформлением ипотеки, чтобы покупка квартиры стала максимально простой и удобной. Эта квартира станет отличным выбором для молодой семьи или людей с активной жизненной позицией! Объект передается полностью готовым к проживанию, без обременений, с чистой юридической историей и отражением полной стоимости в договоре купли-продажи. Не упустите свой шанс на комфортное будущее — звоните прямо сейчас для организации просмотра!

Актуальные новости про недвижку в нашем телеграм-канале: ПРОнедвижку

Похожие квартиры

По цене
По площади
По расположению