2-комн. квартира на ул. 60 лет Октября, 141

Идентификатор: 483100   Дата обновления: 13-05-2026

304
Показать на карте

Дополнительная информация

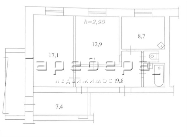
  • Описание: Предлагаю купить просторную 2- комнатную квартиру в Свердловском районе. Уютная квартира с добротным ремонтом в очень хорошем состоянии . Ванная комната и туалет отделаны кафелем, установлены новые радиаторы отопления, надежная входная дверь с шумо- и звукоизоляцией, межкомнатные двери из массива . Просторный балкон отделан деревом и остеклен стеклопакетами. БОНУС: имеется дополнительная комната 7,4 кв.м., которую можно использовать как для хозяйственных нужд, так и для проживания. В квартире остается кухонный гарнитур с варочной поверхностью, духовым шкафом и вытяжкой, водонагреватель в туалете , вместительный встроенный шкаф в прихожей и кондиционер в спальне.
    Придомовая территория: Чистый подъезд, тихие соседи.
    Условия продажи: Быстрый выход на сделку. Показ квартиры в удобное для вас время.

Актуальные новости про недвижку в нашем телеграм-канале: ПРОнедвижку

Похожие квартиры

По цене
По площади
По расположению