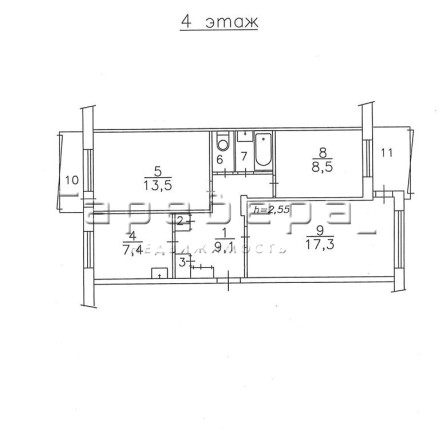
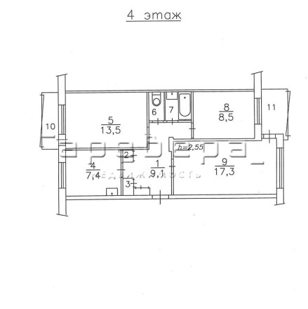
3-комн. квартира на ул. Побежимова, 3

Идентификатор: 483211   Дата обновления: 12-05-2026

283
Показать на карте

Дополнительная информация

  • Описание: Предлагается к продаже трехкомнатная квартира, идеально подходящая для большой и дружной семьи. Квартира расположена на четвертом этаже, на две стороны дома и находится в жилом состоянии, готова к заселению. В ней частично установлены пластиковые окна, счетчики учета потребление воды. Также имеются балкон и лоджия. Подъезд чистый, соседи дружелюбные.
    Инфраструктура: Квартира находится в районе с развитой инфраструктурой. В пешей доступности расположены:
    • Средняя школа № 93
    • Детский сад № 286
    • Детский центр «Ладошки»
    • Детская библиотека им. В. Драгунского
    • Поликлиники для детей и взрослых, включая Федеральный Сибирский научно-клинический центр ФМБА России
    • Почтовое отделение связи
    • Супермаркеты: «Пятерочка», «Батон», «Красный Яр», «Fix Price», «Океан», «Маяк»
    • Торговые центры: ТЦ «Атмосфера дома», ТЦ «Красноярье», «М.Видео»
    • Развита сеть аптек и салонов бытового обслуживания
    Также в районе находятся высшие и профессиональные учебные заведения:
    • Институт цветных металлов
    • Красноярский монтажный колледж
    • Красноярский колледж радиоэлектроники и информационных технологий
    Дом расположен вдали от шумных магистралей, но в пешей доступности находятся остановки общественного транспорта с хорошей транспортной развязкой, что позволяет легко добраться в любой район города.
    Условия продажи: Квартира подходит под любой вид расчета, включая сертификаты и ипотеку. Без обременений и перепланировок. Мы готовы оказать помощь в продаже вашей недвижимости. Если у вас остались вопросы или вы хотите организовать показ квартиры, звоните! Будем рады помочь!

Актуальные новости про недвижку в нашем телеграм-канале: ПРОнедвижку

Похожие квартиры

По цене
По площади