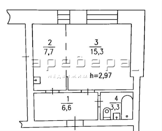
1-комн. квартира на ул. Семафорная, 17а

Идентификатор: 483285   Дата обновления: 13-04-2026

184
Показать на карте

Дополнительная информация

  • Описание: Предлагаю купить однокомнатную квартриру в кирпичном доме на Пашенном. В квартире сделан ремонт.
    Инфраструктура: Удобная транспортная доступность. В пешей доступности школа № 137, а также детские сады. Дом находится в новом современном микрорайоне"Пашенный", где есть супермаркеты, продуктовые магазины, аптеки, салоны красоты, кафе и прочие объекты инфраструктуры. Рядом находится остановка общественного транспорта.
    Условия продажи: Звоните и записывайтесь на просмотр!

Актуальные новости про недвижку в нашем телеграм-канале: ПРОнедвижку

Похожие квартиры

По цене
По площади
По расположению