2-комн. квартира на ул. Ястынская, 11

Идентификатор: 483358   Дата обновления: 16-04-2026

153
Показать на карте

Дополнительная информация

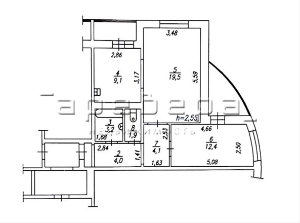
  • Описание: Предлагаем купить замечательную 2-х комнатную квартиру в центре «Ястынского поля» общей площадью с учетом двух лоджий 58,4 м.кв. Монолитно-кирпичный дом сдан в 2011 году. Жилая площадь – 31,9 кв.м. Общая площадь квартиры без учета лоджий 54,8 кв.м. Коридор 4,1 кв.м, спальни 19.5 кв.м. и 12,4 кв.м., кухня 9,1 кв.м, санузел 1,9 кв.м, ванна 3.2 кв.м., лоджии 3,6 кв.м. Окна во всей квартире деревянные стеклопакеты. Две остекленные лоджии. Квартира очень теплая, светлая, уютная. Обширный вид из окна во двор, на детский сад. В квартире остается, гардеробный шкаф, прихожая, кухонный гарнитур, вытяжка. Мебель и техника по договоренности.

    В подъезде грузопассажирский лифт. Подъезд и этаж всегда чистые, уборка производится регулярно. Соседи по площадке все семейные, спокойные и вежливые. Двор огромный, есть детская зона с игровыми комплексами. Высажены деревья и кустарники, клумбы и газон, которые летом облагораживаются.

    В шаговой доступности магазины, супермаркеты, ТРК Сибирский городок, Гипермаркет Лента, Детский сад № 42, Школа № 152, аптеки, салоны красоты, остановки общественного транспорта. Район с очень развитой инфраструктурой.

    Добро пожаловать на просмотр!

Актуальные новости про недвижку в нашем телеграм-канале: ПРОнедвижку

Похожие квартиры

По цене
По площади
По расположению