3-комн. квартира на ул. Баумана, 5

Идентификатор: 483388   Дата обновления: 27-03-2026

141
Показать на карте

Дополнительная информация

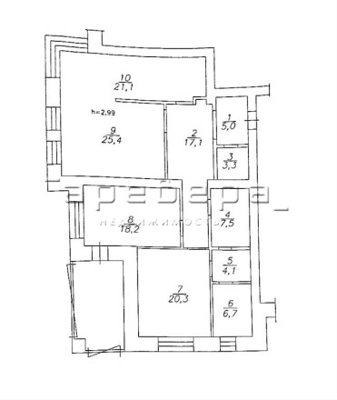
  • Описание: Предлагаю вашему вниманию просторную, светлую, уютную 3х комнатную квартиру в Октябрьском районе, по адресу Баумана 5, в кирпичном доме, построенном в 2006 году. Квартира расположена на 4 этаже 14ти этажного дома, что обеспечивает оптимальный уровень комфорта и тишины. Закрытый двор, шлагбаум, консьерж.

    Общая площадь квартиры cоставляeт 128,7 кв. м, куxня — 21 кв. м., переходящая в гостиную площадью 25,4кв.м. Высота потолков — 2,99 м. Застекленная, утепленная лоджия площадью 12,3 кв.м.

    Особенности квартиры:
    - Раздельные комнаты, каждая из которых обладает достаточной площадью для комфортного проживания и обустройства личного пространства,
    - Санузел 1- кафель, душевая кабина, ванна, раковина, унитаз, биде,
    - Санузел 2 — кафель, унитаз, раковина, установлена стиральная машина.
    - Напольное покрытие: гостиная, спальня большая - дубовый паркет, спальня, лоджия утепленная, гардеробная - пробка, коридор и санузлы - кафель. Стены оклеены обоями. Остается встроенный шкаф, обустроенная гардеробная, люстры, светильники.

    Квартира в отличном состоянии, так что вы сможете сразу заселиться и наслаждаться комфортом своего нового дома.

    Расположение квартиры отличается своей привлекательностью благодаря близости парков для прогулок, торговых центров для шопинга, Гимназии №3 и детских садов для семей с детьми, а также медицинских учреждений для поддержания здоровья.

    Дополнительным преимуществом является строительство станции метро поблизости, что значительно улучшит транспортную доступность района.
    Этот вариант идеально подойдёт тем, кто ценит комфорт, удобство расположения и желает создать своё собственное пространство для жизни и отдыха.

Актуальные новости про недвижку в нашем телеграм-канале: ПРОнедвижку

Похожие квартиры

По цене
По площади
По расположению