1-комн. квартира на ул. Амурская, 14

Идентификатор: 483464   Дата обновления: 07-04-2026

159
Показать на карте

Дополнительная информация

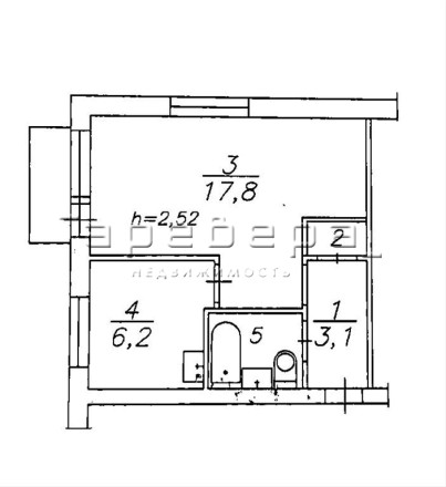
  • Описание: Продаётся 1-комнатная квартира в развитом районе — мкрн. Нижние Черёмушки (Ленинский район). Квартира расположена на комфортном 5 этаже. Состояние — жилое, можно заехать и жить сразу, без срочных вложений. Планировка удобная и практичная: совмещённый санузел в кафеле кухня с газовой плитой застеклённый балкон Главное преимущество — квартира не испорчена чужим ремонтом. Вы не переплачиваете за устаревший дизайн и можете сделать всё под себя и свой вкус.
    Инфраструктура: Дом находится в районе с отлично развитой инфраструктурой: школы и детские сады, магазины и рынок, остановки общественного транспорта — в шаговой доступности.
    Условия продажи: Все документы готовы к сделке, проверены юристом. Показ — по предварительной договорённости. Звоните, отвечу на вопросы и организую просмотр!

    Есть покупатель. Внесён аванс.

Актуальные новости про недвижку в нашем телеграм-канале: ПРОнедвижку

Похожие квартиры

По цене
По площади
По расположению