1-комн. квартира на ул. Водопьянова, 5

Идентификатор: 483488   Дата обновления: 10-04-2026

216
Показать на карте

Дополнительная информация

  • Описание: Установлено новое остекление на балконе. Квартира находится на последнем этаже, в классическом кирпичном доме. Один из больших плюсов последнего этажа-никто не будет топать и шуметь над головой. На полу уложена звукоизоляция- "плавающий пол". Капитальный ремонт кровли сделан управляющей компанией в 2023 г. Из мебели остается встроенный шкаф-купе. Остальная мебель по договоренности. 
    Придомовая территория: Тихое место. Рядом с домом большое количество парковочных мест.
    Инфраструктура: Расположение - район ТЦ «Планета» - одна из лучших локаций города. Востребованное место для проживания и инвестиций. Аренда здесь разбирается, быстрее, чем горячие пирожки от любимой бабушки. Школа №24 и детские сады расположены внутри квартала ( дорогу переходить не нужно ) Спокойный, безопасный район в сердце деловой «Взлетки».
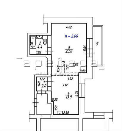
    Условия продажи: Квартира без обременений, один взрослый собственник. Перепланировка узаконена.

    Есть покупатель. Внесён аванс.

Актуальные новости про недвижку в нашем телеграм-канале: ПРОнедвижку

Похожие квартиры

По цене
По площади
По расположению