2-комн. квартира В Лесосибирский, п. Новоенисейск

Идентификатор: 483517   Дата обновления: 15-04-2026

181
Показать на карте

Дополнительная информация

  • Описание: 2-комнатная квартира в Лесосибирске: простор, уют и отличная инфраструктура.
    Предлагаем купить 2-комнатную квартиру улучшенной планировки в посёлке Новоенисейск (ул. Калинина, д. 18, г. Лесосибирск). Дом панельный, 5-этажный, построен в 1982 году. Квартира расположена на 2 этаже и ждёт новых хозяев, готовых воплотить свои дизайнерские идеи.

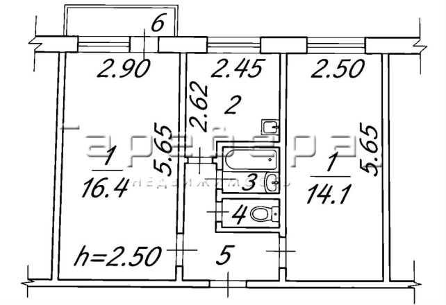
    О квартире
    Общая площадь: 44,8 м2. Жилая площадь: 30,5 м2. Кухня: 6,5 м2 — достаточно места для семейных ужинов и встреч с друзьями. Планировка: улучшенная, с изолированными комнатами — идеальный вариант для семьи. Санузел: раздельный, уже оборудован душевым поддоном. Окна: ПВХ в спальне и на кухне — тепло и тихо. Балкон: застеклён — можно обустроить зону отдыха. Состояние: требует ремонта — возможность создать интерьер своей мечты.

    Инфраструктура и преимущества
    Квартира находится в районе с развитой инфраструктурой: В доме: аптека, магазин «Магнит», магазин детских товаров «Антошка», салон цветов. В шаговой доступности: остановки общественного транспорта, детские сады №55 и №34, школа №6, магазин «Мясной дворик», пункты выдачи заказов Ozon и Wildberries. Для прогулок и отдыха: сквер «Юбилейный».
    Во дворе: оборудованная детская площадка.

    Условия сделки
    Чистая продажа, один взрослый собственник. Подходит под любой вид расчёта. Возможен обмен на недвижимость в Красноярске или автомобиль. Помощь в получении ипотечного решения и полное сопровождение сделки на всех этапах.

    Это отличный вариант для тех, кто ценит простор, тишину и комфорт, а также хочет жить в районе с развитой инфраструктурой. Квартира — прекрасная возможность создать уютное семейное гнёздышко!

    Звоните прямо сейчас, чтобы узнать подробности и договориться о просмотре!

Актуальные новости про недвижку в нашем телеграм-канале: ПРОнедвижку

Похожие квартиры

По цене
По площади
По расположению