2-комн. квартира на ул. Аэровокзальная, 8б

Идентификатор: 483649   Дата обновления: 20-03-2026

173
Показать на карте

Дополнительная информация

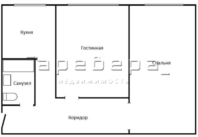
  • Описание: Предлагается к продаже 2 комнатная квартира, хрущевка, на ул. Аэровокзальная д.8Б Общая площадь 44 кв Комнаты раздельные, сан.узел совмещенный, сделан ремонт, балкона нет. В сан.узле заменены вся сан.техника.
    Инфраструктура: Дом расположен не далеко от междугороднего автовокзала, рядом находится остановка общественного транспорта, что позволяет добраться в любую точку города.
    Условия продажи: На все интересующие Вас вопросы готова ответить по телефону!

Актуальные новости про недвижку в нашем телеграм-канале: ПРОнедвижку

Похожие квартиры

По цене
По площади
По расположению