2-комн. квартира на ул. 40 лет Победы, 30

Идентификатор: 482973   Дата обновления: 22-04-2026

208
Показать на карте

Дополнительная информация

  • Описание:Предлагаю купить двухкомнатную квартиру в микрорайоне Солнечный.
    Основные характеристики квартиры:
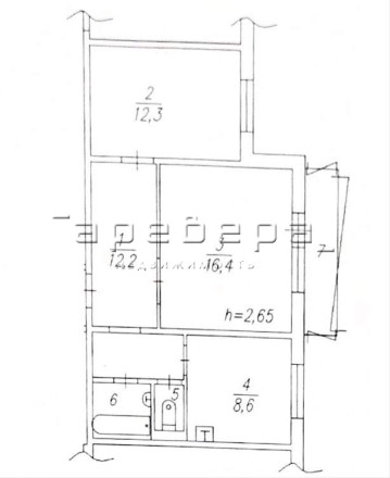
    Тип дома: панельный дом, аккуратный подъезд, грузовой лифт.
    Планировка: раздельные комнаты, раздельный санузел, косметический ремонт, застеклённый балкон.
    Оснащение: вместительный шкаф в коридоре, кухонный гарнитур со встроенной бытовой техникой (варочная панель, духовой шкаф, посудомоечная машина, вытяжка).
    Инфраструктура:
    Просторная придомовая территория с детской площадкой.
    В шаговой доступности: детский сад № 56 и № 112, школа № 144, поликлиника, остановка общественного транспорта.
    Развитая инфраструктура для комфортного проживания.
    Условия продажи:
    2 взрослых собственника.
    Материнский капитал не использовался.
    Обременений нет.
    Преимущества:
    Отличное расположение и инфраструктура.
    Удобная планировка.

    Есть покупатель. Внесён аванс.

Актуальные новости про недвижку в нашем телеграм-канале: ПРОнедвижку

Похожие квартиры

По цене
По площади
По расположению