1-комн. квартира на пер. Тихий, 11

Идентификатор: 483712   Дата обновления: 05-05-2026

197
Показать на карте

Дополнительная информация

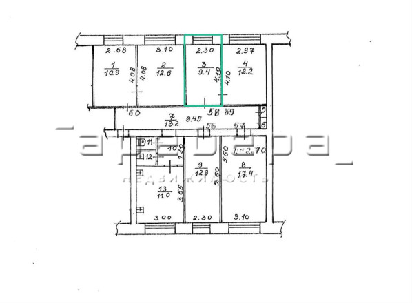
  • Описание: Предлагаем к продаже уютную комнату в 6-комнатной квартире по адресу пер. Тихий, 11.
    Квартира расположена на 2 этаже в 4-х этажном кирпичном доме.
    Комната теплая, сухая, с косметическим ремонтом, общая площадь — 9.4 кв.м. м. Окно пластиковое, на полу линолеум, качественная входная дверь.
    Соседи адекватные, спокойные.
    Квартира не переуплотнена, социально спокойная, жилые только 2 комнаты.
    Квартира большая, просторная, есть общая зона для хранения вещей, чистая кухня и санузел.
    Подойдёт как для одного человека, так и для пары или студента.
    Условия продажи: Документы готовы для сделке, обременений нет. По документам доля, рассматриваем покупателя только с наличным расчетом.
    Звоните, покажу комнату, отвечу на все интересующие вопросы.

Актуальные новости про недвижку в нашем телеграм-канале: ПРОнедвижку

Похожие квартиры

По цене
По площади