1-комн. квартира на ул. Светлогорская, 29

Идентификатор: 483946   Дата обновления: 15-04-2026

23
Показать на карте

Дополнительная информация

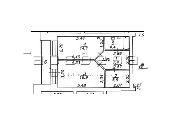
  • Описание: Предлагается к продаже просторная, светлая однокомнатная квартира. Квартира в жилом состоянии, на полу — линолеум, раздельный санузел выполнен в кафеле.
    Придомовая территория: Дом расположен на второй линии от дороги, таким образом Вас не побеспокоит шум и загазованность от автомобилей. Окна квартиры выходят на одну сторону дома.
    Инфраструктура: Удобная транспортная развязка. Большое количество мест для прогулок. В шаговой доступности находится вся необходимая инфраструктура: супермаркеты, аптеки, автобусные остановки, поликлиники, детский сад «Русалочка», школа 143,ТРЦ Комсомольский.
    Условия продажи: Квартира без обременений и долгов. Собственники все взрослые. Рассмотрим любую форму расчета. Показ по предварительной договоренности. Покупатель при покупки объекта, оплачивает комиссию. Если остались вопросы, звоните с 9.00 до 20.00 часов.

Актуальные новости про недвижку в нашем телеграм-канале: ПРОнедвижку

Похожие квартиры

По цене
По площади
По расположению