3-комн. квартира на пер. Маяковского, 13

Идентификатор: 483982   Дата обновления: 17-04-2026

8
Показать на карте

Дополнительная информация

  • Описание: Продаётся 3-комнатная квартира в микрорайоне Первомайский (Красноярск)
    Уютное жильё для большой семьи: просторная квартира в тихом и развитом районе города.
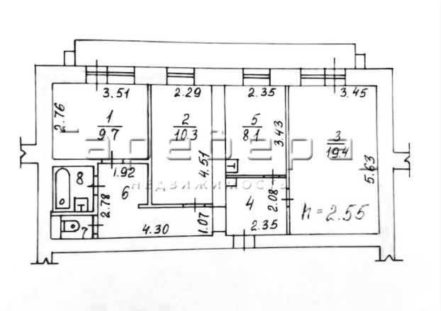
    Основные параметры:
    общая площадь: 66,4 кв. м
    этаж: 5-й из 10;
    тип дома: кирпичный;
    микрорайон: Первомайский.
    Описание квартиры:
    комнаты раздельные, не проходные;
    большая гостиная — 19,4 кв. м;
    просторный балкон — на всю ширину квартиры;
    раздельный санузел;
    окна выходят в сторону улицы Мичурина.
    Особенности дома:
    чистый подъезд;
    обслуживание ТСЖ;
    вдали от шума дорог — спокойная обстановка для жизни.
    Инфраструктура в пешей доступности:
    образовательные учреждения: детский сад № 168, детский сад № 238, школа № 81, лицей «Перспектива»;
    спорт и отдых: стадион «Авангард», парк «Каменка» для прогулок;
    торговля: ТК «Мави», магазины «Командор», «Аллея», «Пятёрочка»;
    духовные объекты: Храм Рождества Христова.
    Транспортная доступность:
    остановка общественного транспорта рядом с домом (автобус, трамвай);
    маршруты: № 7, № 10, № 65;
    удобный выезд на улицу Мичурина.
    Отличный вариант для тех, кто ценит комфорт, тишину и развитую инфраструктуру!
    Звоните, чтобы договориться о просмотре!

Актуальные новости про недвижку в нашем телеграм-канале: ПРОнедвижку

Похожие квартиры

По цене
По площади