1-комн. квартира на ул. Аральская, 39

Идентификатор: 484093   Дата обновления: 23-04-2026

5
Показать на карте

Дополнительная информация

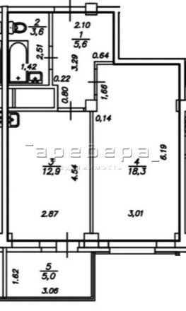
  • Описание: Предлагаю 1-комнатную квартиру, в Кировском районе. Квартира на 13 этаже в 17-и этажном доме. Высокие потолки, много воздуха. Дом только сдан, отделка белый куб. Есть грузовой и пассажирский лифт. Двери в подъезд металлические, на чипах. В местах общего пользования, всегда чисто.
    Квартира идеальна для молодой семьи. Просторная кухня с большим окном, в которой можно разместить и кухню и гостиную. Удобная планировка. Санузел совмещен.
    Для реального покупателя бонусом дизайн проект и скидка на всю встроенную мебель!
    Инфраструктура: Дом находится в дали от основных дорог, нет загазованности и шума. Двор огорожен, много места для парковки. Территория заасфальтирована. Есть зона отдыха и детская площадка.
    Условия продажи: Квартира подходит под любой расчет, быстрая сделка.

  • Подробнее о ЖК Лето, Кутузова,стр.
Актуальные новости про недвижку в нашем телеграм-канале: ПРОнедвижку

Похожие квартиры

По цене
По площади
По расположению