2-комн. квартира на ул. Сергея Лазо, 36

Идентификатор: 484105   Дата обновления: 24-04-2026

10
Показать на карте

Дополнительная информация

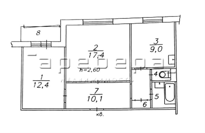
  • Описание: Продается теплая, светлая, уютная квартира. Квартира в жилом состоянии, окна ПВХ.
    Придомовая территория: Дом стоит на второй линии. Во дворе много зелени, оборудована детская площадка. Двор закрыт, стоят откатные ворота. Безопасная парковка для жителей видеонаблюдение двора и в подъезде.
    Инфраструктура: Экологически чистый район с развитой инфраструктурой: в шаговой доступности школа №121 ; детский садик №330, станция зарядки электромобилей. Развитая сеть промтоварных, продовольственных магазинов, супермаркетов, салоны красоты, остановки общественного транспорта расположены в шаговой доступности с множеством маршрутов, с возможностью уехать в разные направления города без пересадок.
    Условия продажи: • "Альтернативная " продажа. Подходит под любой расчёт. Помощь в оформлении ипотеки бесплатно. Сопровождение сделки на всех этапах. При покупке данного объекта покупатель оплачивает проведение сделки. Звоните, отвечу на все интересующие вопросы с 09.00 до 20.00.

Актуальные новости про недвижку в нашем телеграм-канале: ПРОнедвижку

Похожие квартиры

По цене
По площади
По расположению