2-комн. квартира на Ярыгинская набережная, 29

Идентификатор: 484118   Дата обновления: 24-04-2026

6
Показать на карте

Дополнительная информация

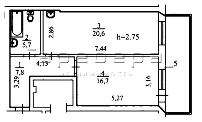
  • Описание: Продаётся уютная и тёплая квартира в евро-планировке. Основные преимущества: тёплый дом, на берегу Енисея. С большой остеклённой лоджией, из которой открывается вид на Енисей и двор. Совмещенная гостиная с кухней (места достаточно). Также большая комната с выходом на лоджию, которую можно использовать как спальню. Остаётся вместительный шкаф. Санузел совмещен. Сделана дополнительная высокая перегородка, что позволило сделать зонирование и отделить ванну и стиральную машину. Вся техника и мебель, что есть на фото остаётся.
    Инфраструктура: Вся необходимая инфраструктура рядом: школы, детские сады, торговые точки, медицинские центры. Удобное местоположение. И конечно же, набережная Енисея!
    Условия продажи: Один взрослый собственник.

Актуальные новости про недвижку в нашем телеграм-канале: ПРОнедвижку

Похожие квартиры

По цене
По площади
По расположению