Нежилое помещение на ул. Петра Подзолкова

Идентификатор: 480549   Дата обновления: 30-03-2026

267
Показать на карте

Дополнительная информация

  • Описание: Предлагаю в долгосрочную аренду универсальное коммерческое помещение в мкр. Преображенский, ул. Петра Подзолкова 8.

    Помещение находится на первой линии, что обеспечивает высокий пешеходный и автомобильный трафик и является несомненным плюсом для Вашего бизнеса!

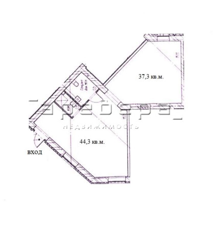
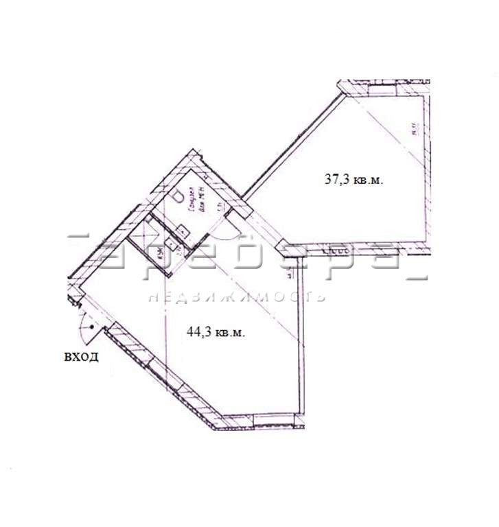
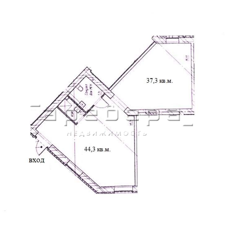
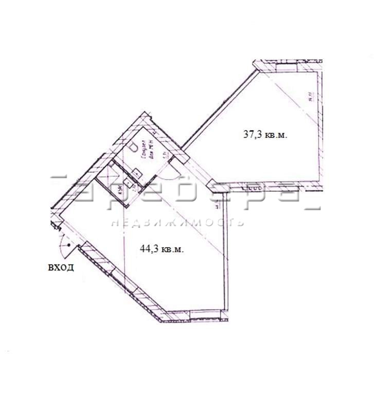
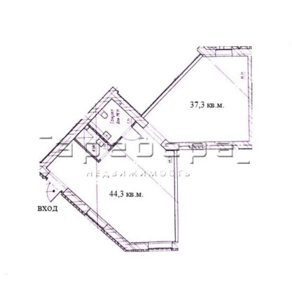
    Нежилое помещение площадью 88,7 кв.м., с двумя залами 44,3 и 37,3 кв.м., мокрой точкой, витражными окнами и высотой потолков 4,2м. Пред чистовая отделка от застройщика, все можно сделать под себя.
    Предоставляются арендные каникулы. Предложение по цене обсуждается.
    Помещение подойдет для любого вида бизнеса в динамично развивающемся жилом районе. Звоните, покажу в удобное для Вас время!

Актуальные новости про недвижку в нашем телеграм-канале: ПРОнедвижку

Похожие объекты коммерческой недвижимости

По цене
По площади
По расположению