Нежилое помещение на ул. 9 Мая

Идентификатор: 481730   Дата обновления: 22-10-2025

356
Показать на карте

Дополнительная информация

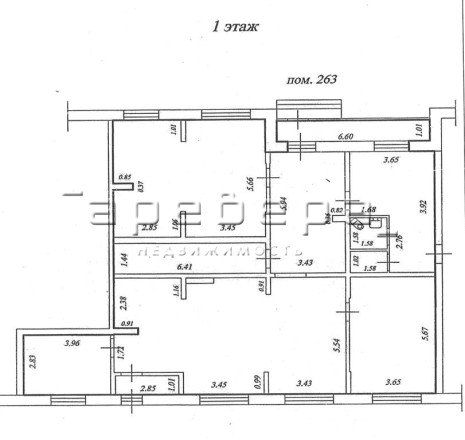
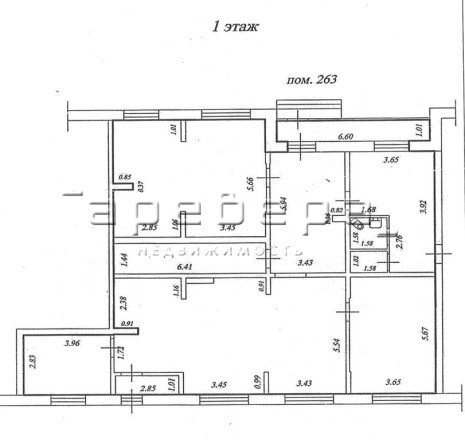
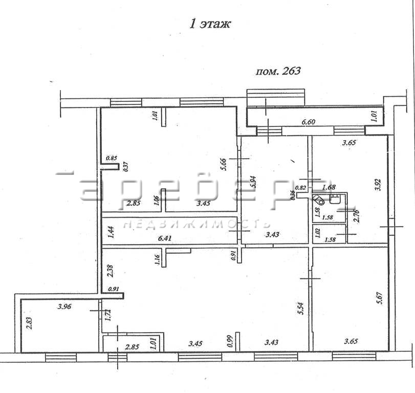
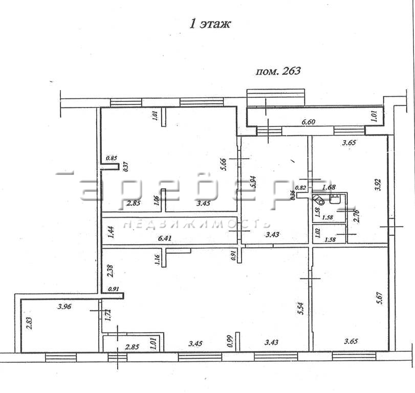
  • Описание: Сдается в аренду нежилое помещение 171 м.кв. В данный момент используется под медицинский центр, соответственно, удовлетворяет всем нормам под этот вид деятельности. Два санузла (для персонала и клиентов). На полу керамогранит, стены окрашены, кондиционеры. Есть возможность перепланировать помещение под свои запросы. Дом располагается в жилом районе. На первой линии от дороги. Удобный подъезд. Всегда есть место для автомобиля.
    Условия: Сдается на длительный срок. Обеспечительный залог в размере одной месячной арендной платы.

Актуальные новости про недвижку в нашем телеграм-канале: ПРОнедвижку

Похожие объекты коммерческой недвижимости

По цене
По площади
По расположению