Дом в районе д. Минино

Идентификатор: 479227   Дата обновления: 08-04-2026

26
Показать на карте

Дополнительная информация

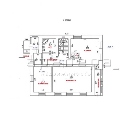
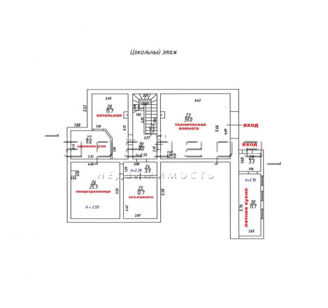
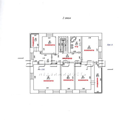
  • Описание: Элегантный кирпичный дом в живописной локации: гармония пространства и комфорта. Этот просторный дом площадью 402 м?, построенный в 2015 году из кирпича, — идеальный пример современного загородного жилья, где каждая деталь продумана для комфорта и эстетики. Расположенный на возвышенности в престижном поселке, он открывает панорамные виды на город, который вечерами превращается в мерцающее огнями полотно. Уединение и тишина здесь сочетаются с удобной транспортной доступностью: два въезда в поселок и отличная развязка позволяют быстро добраться до центра, сохраняя ощущение жизни «вдали от суеты».  Дом встречает тремя входами, подчеркивая его функциональность. На первом этаже (164 м?) царит атмосфера гостеприимства: просторная кухня-столовая с выходом в лоджию и на террачу, две светлые комнаты, и два санузла, включая гостевой. Высота потолков — 3 метра, а теплые полы в коридоре, санузлах и кухне ( в зоне керамогранита) и камин добавляют уюта даже в холодные вечера.  Второй этаж (174 м?) — приватная зона с пятью комнатами, где найдется место для каждого члена семьи. Две лоджии с видами на окрестности станут любимым уголком для утреннего кофе или вечернего отдыха. Встроенные системы хранения подчеркивают внимание к деталям, а единый стиль интерьера — нейтральные тона, натуральные материалы, лаконичная мебель — создает ощущение гармонии.  Цокольный этаж (136 м?) — воплощение практичности: здесь расположены котельная, кладовая, овощехранилище с полками и технические помещения. Все коммуникации продуманы до мелочей: септик на 10 м?, центральное водоснабжение, твердотопливный котел «Прометей», как альтернатива электрокотел и газгольдер. Ухоженный участок с ландшафтным дизайном разделен на зоны, где гармонично соседствуют две большие теплицы, баня из кирпича с парилкой, комнатой отдыха, душевой и отдельным санузлом, а также летняя кухня со входом со двора , как часть цокольного этажа. Гараж и автоматические ворота завершают образ идеального хозяйства. 
    Инфраструктура: Поселок предлагает не только живописные виды, но и развитую инфраструктуру: зимняя уборка улиц, вывоз мусора. А школьный автобус безопасно доставит ваших детей до ворот школы № 159, самая большая школа за Уралом, расположена в 4 км от поселка. Детские секции и даже бассейн в районе Мясокомбината, всего в 5 мин езды от дома. При этом экология здесь безупречна: чистый воздух, тишина, как в деревне, и обширные территории для прогулок, велопоездок или катания на квадроциклах и снегоходах. 
    Условия: Категория земли: Земли населенных пунктов - Назначение: Для индивидуального жилого строительстваЭтот дом собрал главные преимущества загородной жизни: экологию, удобную локацию, качественную постройку и продуманный интерьер. Здесь можно наслаждаться тишиной, не жертвуя современным комфортом, а вид из окон будет напоминать, что вы выбрали не просто дом — вы выбрали образ жизни. 

Актуальные новости про недвижку в нашем телеграм-канале: ПРОнедвижку

Похожие дома и коттеджи

По цене
По площади