Дом в районе кп. Западные аллеи

Идентификатор: 480935   Дата обновления: 05-02-2026

190
Показать на карте

Дополнительная информация

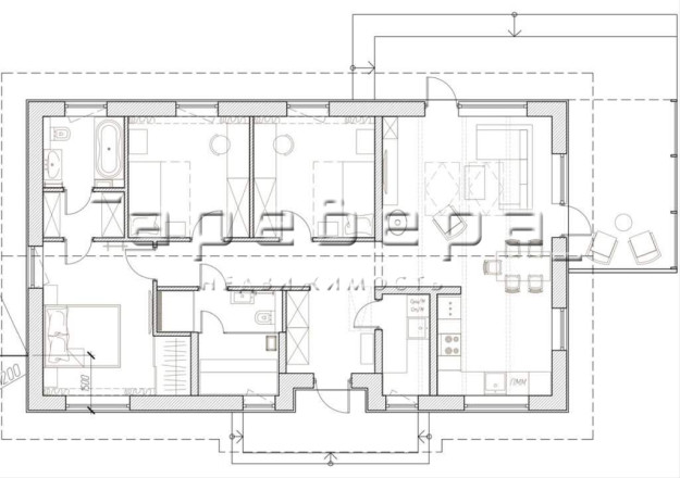
  • Описание: Предлагаю купить готовый дом в загородном поселке «Западные Аллеи», поселок в Западном направлении, рядом с п. Элита, в 16 км от Красноярска. Посёлок выстроен по оригинальной концепции "уютных тупичков”. Дома здесь сгруппированы таким образом, что каждая группа из 8 домов формирует свою небольшую улицу. Это создаёт особый микроклимат для общения и безопасности: здесь нет проезжей части с активным движением автомобилей, что позволяет детям свободно играть на свежем воздухе. Дом площадью 100 кв.м. с участком 7,5 соток. Характеристики дома: -газоблок 400 -отделка «Белый куб» -снаружи декоративная штукатурка -электричество разведено по точкам -бойлер -электрокотел ZOTA -скважина с кессоном -септик 6 кубов -металлочерепица (можно сделать фальцевую кровлю) -окна + входная дверь с терморазрывом -забор евро штакетник + калитка + откатные ворота ( с возможностью электропривода)

Актуальные новости про недвижку в нашем телеграм-канале: ПРОнедвижку

Похожие дома и коттеджи

По цене
По площади
По расположению