Дом в районе с. Талое

Идентификатор: 481664   Дата обновления: 23-03-2026

39
Показать на карте

Дополнительная информация

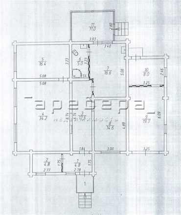
  • Описание: Предлагаем купить дом для круглогодичного проживания на участке, расположенном в с. Талое , ТСН «Золотая Долина». Дом благоустроенный. Отопление от твердотопливного котла. Вода подается из своей скважины (питьевая), водоотведение в септик. На участке есть две теплицы, парковочное место для автомобиля, гараж, летний душ и туалет.
    Инфраструктура: Выгодное географическое расположение очевидно, незначительное удаление от Красноярска позволяют насладиться тишиной и свежим воздухом. Не далеко от участка есть лес.
    Условия: Один взрослый собственник, документы проверены юристом. Звоните, показ организую оперативно, не упустите шанс стать обладателем участка для дружной семьи! Не пожалеете. При покупке данного объекта покупатель оплачивает проведение сделки. С нашей стороны сопровождение на всех этапах. Если остались вопросы, звоните с 9.00 до 20.00 часов.

Актуальные новости про недвижку в нашем телеграм-канале: ПРОнедвижку

Похожие дома и коттеджи

По цене
По площади