Дом в районе д. Крутая

Идентификатор: 483711   Дата обновления: 30-04-2026

33
Показать на карте

Дополнительная информация

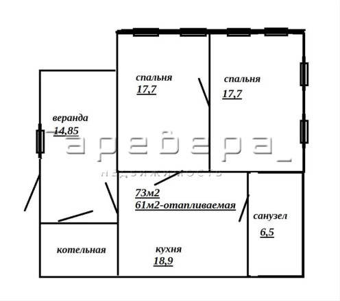
  • Описание:Предлагаю купить дом из бревна лиственницы в д. Крутая Емельяновского района, расположенной в 35 км от г. Красноярска в сосновом бору.

    Дом очень крепкий, теплый, создает комфортный микроклимат как зимой так и летом, имеет пристроенную веранду, кухню-гостиную, а также кочегарку.
    Общая площадь дома 73,2м2
    Отапливаемая жилая площадь 61м2.

    Окна установлены ПВХ, система отопления очень надежная и функциональная, с твердотопливным котлом «ZOTA», однотрубной системой теплопередачи с алюминиевыми радиаторами. В доме стены оклеены обоями, на полу уложен линолеум, полы в доме очень крепкие, не скрипят, не качаются. Крыша дома и гаража покрыта металопрофилем, все сделано очень качественно.

    Площадь участка 8 соток, участок ровный, въезд во двор имеется, территория между домом и гаражом выложена тротуарным камнем, во дворе в связи с этим всегда чисто. Въезд оборудован распашными новыми качественными воротами. Придворовая территория большая, создает дополнительный комфорт пользования данным домом.

    Из надворных построек имеется баня и гараж. Гараж новый построен из пеноблоков, площадь гаража большая, ворота и входные двери в гараж металлические качественные. В гараже имеется погреб для круглогодичного хранения овощей и продуктов, а также утепленная скважина с глубинным насосом. Вода из скважины подается в дом, поэтому в доме имеется водообеспечение, водопровод проложен из гаража в дом со значительным углублением.

    Двор огорожен забором, с внешней стороны улицы - металопрофилем, на металлических заглубленных столбах с металлическим каркасом. С остальных сторон участок огорожен деревянным забором. На участке имеется огород с теплицей и парниками, а также имеется полисадник.
    Инфраструктура: Инфраструктура деревни Крутая достаточно развитая, имеется все необходимое для комфортного проживания, а близость расположения деревни от пгт Емельяново и г. Красноярска все большее привлекает новых жителей для строительства современных домов.
    Условия: чистая продажа, более 5 лет в собственности, без обременения, один взрослый собственник. Показ по предварительной договоренности.

Актуальные новости про недвижку в нашем телеграм-канале: ПРОнедвижку

Похожие дома и коттеджи

По цене
По площади