Дом в районе д. Плоское

Идентификатор: 483933   Дата обновления: 14-04-2026

18
Показать на карте

Дополнительная информация

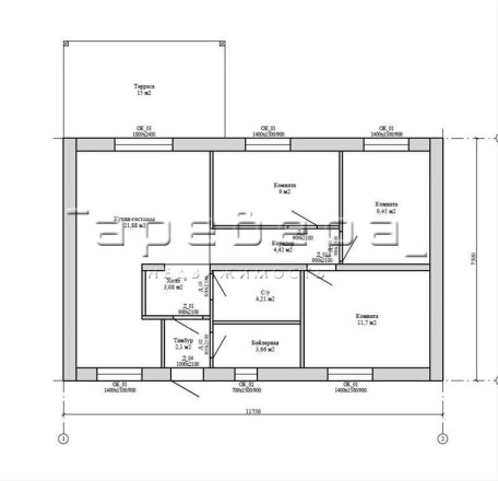
  • Описание: Продается современный дом из бруса 180?180 мм в охраняемом коттеджном поселке «Андреев посад».
    Общая площадь 90 м? (75 м? — теплоизолированное пространство + 15 м? открытая терраса для летнего отдыха).

    Участок ИЖС 10 соток: идеально ровный, с молодыми соснами — никакой дополнительной планировки не требуется, можно сразу начинать обустройство зон отдыха, сада или детской площадки.

    Коммуникации «под ключ»:
    — Центральное водоснабжение от поселковой водоподстанции с собственной системой фильтрации.
    — Септик объемом 5 куб. м — готов к эксплуатации.
    — Электричество 15 кВт — запас под любую бытовую технику.
    — Теплые водяные полы по периметру дома от электрокотла Zota — равномерный прогрев без радиаторов.
    Отделка: на полу — идеально ровная полусухая стяжка под любое покрытие (ламинат, паркет, ковролин). В санузле уже уложен кафель. Натяжной потолок — не нужно тратить время и деньги на финишную отделку.

    Состояние: дом готов на 90%. Сейчас идут завершающие работы, но вы уже можете оценить реальное качество и планировку.

    Поселок с инфраструктурой премиум-уровня:
    — Круглосуточный КПП и шлагбаум
    — Видеонаблюдение по периметру
    — Регулярный вывоз мусора
    — Ухоженные дороги внутри поселка и хороший асфальт до самой границы
    — Всего 30 минут до ТРЦ «Планета» (гипермаркеты, кинотеатр, кафе, детские зоны)

    Юридические и финансовые бонусы:
    — Продажа от юридического лица — чистая сделка
    — Дом подходит под сельскую и семейную ипотеку (низкая ставка)
    — Поможем оформить любую ипотеку, в том числе с привлечением материнского капитала в качестве первоначального взноса

    Приезжайте на просмотр, чтобы лично оценить качество бруса, планировку и уровень жизни в поселке.

Актуальные новости про недвижку в нашем телеграм-канале: ПРОнедвижку

Похожие дома и коттеджи

По цене
По площади
По расположению