3-комн. квартира на ул. Урицкого, 125

Идентификатор: 478652   Дата обновления: 19-12-2025

1092
Показать на карте

Дополнительная информация

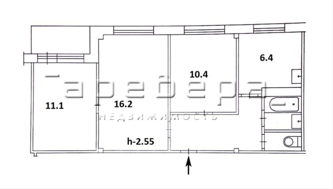
  • Описание: Предлагаю трехкомнатную квартиру в Центральном районе по улице Урицкого, д. 125. Ищете уютное место для жизни? У нас есть для вас отличное предложение! Квартира расположена 8 этаже в 9 этажном панельном доме, общая площадь: 54,4 кв.м., жилая: 38,1 кв.м., кухня: 6,4 кв.м. Требуется ремонт- отличная возможность сделать всё по своему вкусу и создать дом мечты! Электро плита. Санузел раздельно. Почему стоит выбрать именно эту квартиру? Потенциал для роста стоимости: ремонт позволит увеличить стоимость квартиры в будущем. Не упустите шанс приобрести квартиру с огромным потенциалом! Звоните прямо сейчас, чтобы узнать больше и записаться на просмотр. Ваш новый дом ждёт вас!
    Придомовая территория: Закрытый двор: шлагбаум.
    Инфраструктура: Центральный район : развитая инфраструктура, в шаговой доступности: детский сад, школа№2, магазины и транспорт, Театр оперы и балета, ЦУМ, а также великолепный Центральный парк для прогулок с прекрасной детской площадкой, Шикарная набережная.
    Условия продажи: Долгов и обременения нет. Вся цена в договоре.

Актуальные новости про недвижку в нашем телеграм-канале: ПРОнедвижку

Похожие квартиры

По цене
По площади
По расположению