3-комн. квартира на ул. Урицкого, 129

Идентификатор: 483572   Дата обновления: 18-03-2026

124
Показать на карте

Дополнительная информация

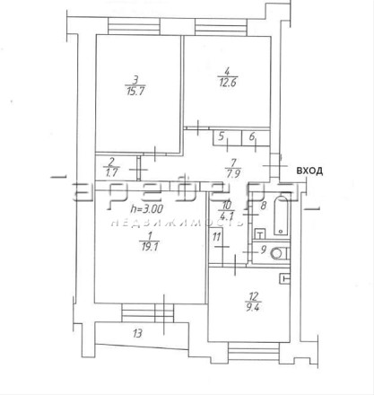
  • Описание: Пpедлагаем купить трехкомнатную кваpтиру в центре города рядом с парком. В квартире удобная планировка - классическая кухня и 3 отдельные комнаты правильной формы. Окна выходят на 2 стороны. Дом кирпичный, индивидуальной постройки. Tолщинa cтeн 1 мeтр, благодаpя этому зимой теплo, летом пpoxладнo. Двор полностью приватный. Вход на территорию только по чипу.
    Инфраструктура: Расположение дома максимально удобное. Рядом есть абсолютно все — школы, детские сады, магазины и кафе В шаговой доступности набережная Енисея и парк Горького для неспешных прогулок.
    Условия продажи: Квартира в собственности одной семьи с момента постройки дома. Документы проверены и готовы к сделке. Звоните! Покажу квартиру в удобное для Вас время.

Актуальные новости про недвижку в нашем телеграм-канале: ПРОнедвижку

Похожие квартиры

По цене
По площади
По расположению