3-комн. квартира на пр-т Свободный, 63

Идентификатор: 482186   Дата обновления: 12-05-2026

490
Показать на карте

Дополнительная информация

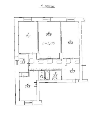
  • Описание: Продам квартиру сталинского типа. Отличная планировка с просторной прихожей, высокие потолки 3 метра, гардеробная (кладовая, лондри), раздельный санузел, большие комнаты. В квартире высокие пластиковые окна на восток, юг и запад, простор для поступления света. Толстые кирпичные стены, хранящие тепло и защищающие от посторонних шумов. Поменяны радиаторы. Отличное расположение с развитой инфраструктурой. Рядом школы, детские сады, остановка, магазины и парк Троя.

Актуальные новости про недвижку в нашем телеграм-канале: ПРОнедвижку

Похожие квартиры

По цене
По площади
По расположению