2-комн. квартира на ул. Красной Армии, 20а

Идентификатор: 483943   Дата обновления: 16-04-2026

14
Показать на карте

Дополнительная информация

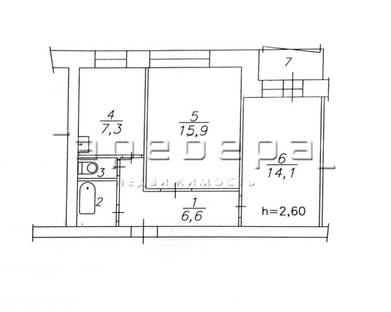
  • Описание: В самом сердце города, у тихого сквера им.В.И. Сурикова, спряталась эта двухкомнатная квартира - настоящая городская жемчужина. Дом стоит в закрытом, зеленом дворе, где царит уют и покой. Кирпичные стены дарят отличную звукоизоляцию: городской шум остаётся за порогом, а внутри - лишь тишина и свет. Из окон открывается вид на запад - каждый вечер здесь можно наблюдать закат. Классическая планировка для комфортной жизни: изолированные комнаты, раздельный санузел, уютная кухня 7,3 м?.
    Придомовая территория: Подъезд радует чистотой и новым лифтом.
    Инфраструктура: А за порогом дома - целая инфраструктура для жизни с удовольствием: рядом школы (№32 и №10), детские сады (№231 и №295), прогулочные места, для души и движения. Для активных - фитнес-центры «Лэвэл Ап» и «Стронго», «Экзотика». Для гурманов и занятых - супермаркеты «Красный яр», «Командор», ТК «Квант» и душевный фудмаркет «Артель». Здесь хочется жить неспешно, и чувствовать себя в центре событий - но в полной безопасности от суеты.

Актуальные новости про недвижку в нашем телеграм-канале: ПРОнедвижку

Похожие квартиры

По цене
По площади
По расположению