3-комн. квартира на ул. Красной Армии, 121

Идентификатор: 483332   Дата обновления: 23-03-2026

162
Показать на карте

Дополнительная информация

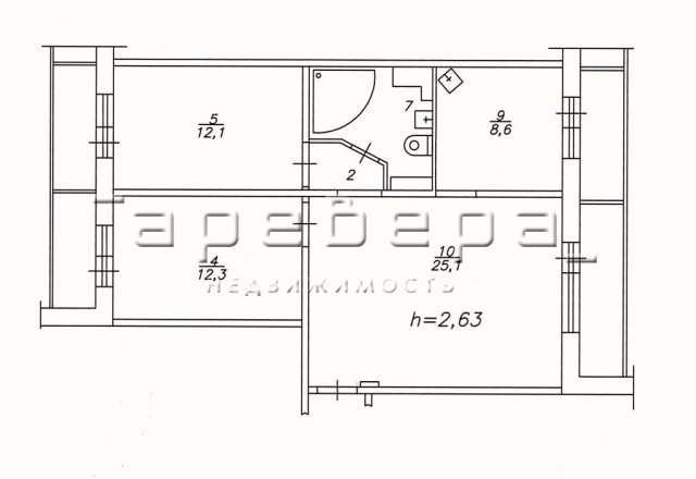
  • Описание: Продаётся трехкомнатная квартира площадью 64,6 квадратных метров на тринадцатом этаже четырнадцатиэтажного панельного дома. Постройки 2003 года. Квартира расположена в шаговой доступности Копыловского моста, в микрорайоне Николаевка города Красноярска по адресу улица Красной Армии, 121. Квартира в хорошем состоянии. Жилая площадь составляет 49,5 кв.м.. Индивидуальная планировка. Комнаты раздельные. Кухня 8,6 кв. м, остается кухонный гарнитур. Прихожая - вместительный встроенный шкаф. Санузел совмещен. Большой балкон вдоль кухни и большой комнаты - откуда открывается приятный вид на двор и улицу.
    Придомовая территория: Для автовладельцев предусмотрена парковка во дворе. Уютная детская площадка. В шаговой доступности строится метро!
    Инфраструктура: Окружающая инфраструктура включает в себя магазины, кафе, школу № 36, детский сад № 10, № 139, торговый центр Апельсин, в шаговой доступности Сквер им. А.П. Степанова и фитнес-клуб.
    Условия продажи: Приглашаем вас ознакомиться с этим предложением! Звоните отвечу на все вопросы и организую просмотр!

Актуальные новости про недвижку в нашем телеграм-канале: ПРОнедвижку

Похожие квартиры

По цене
По площади
По расположению