2-комн. квартира на ул. Связистов, 13/2

Идентификатор: 483383   Дата обновления: 03-03-2026

128
Показать на карте

Дополнительная информация

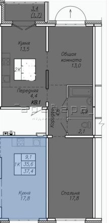
  • Описание: Продается квартира в ЖК "Квартет", который находится в Ленинском районе города Новосибирска по ул. Связистов 10 минут на собственном транспорте или такси.
    Квартира сдана в черновой отделке - «чистый лист» для реализации дизайнерских идей собственника. Отличная планировка, окна выходят на две стороны, что гарантирует комфортную освещенность и уют.
    Квартира со свободной планировкой, что позволит хозяевам максимально сделать под себя.
    Инфраструктура: В шаговой доступности ТЦ Континент, Троицкий Сквер, Спортивный комплекс "Заря", Дворец культуры "Сибтекстильмаш", 11 поликлиника, Центр Микрохирургии глаза, детские сады и школы, большое количество продуктовых и хозяйственных магазинов.
    Отличная транспортная развязка с 3 видами общественного транспорта: в 20 минутах до метро Площадь Карла Маркса на трамвае, автобусе или маршрутке.
    Условия продажи: Чистая продажа. (один собственник, никто не прописан).
    Звоните сейчас, чтобы назначить просмотр! Обсудим цену при встрече с серьезным покупателем.

Актуальные новости про недвижку в нашем телеграм-канале: ПРОнедвижку

Похожие квартиры

По цене
По площади
По расположению