2-комн. квартира на ул. Связистов, 13/2

Идентификатор: 483384   Дата обновления: 03-03-2026

112
Показать на карте

Дополнительная информация

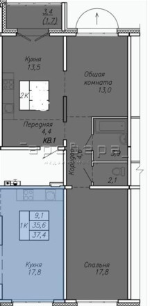
  • Описание: Продается просторная квартира в ЖК «Квартет» (Новосибирск, Ленинский район, ул. Связистов). Идеальный вариант под самостоятельный ремонт: черновая отделка («чистый лист») дает полную свободу для вашего дизайн-проекта.
    Плюсы планировки:
    · Свободная планировка — создайте пространство своей мечты.
    · Окна на две стороны — квартира всегда будет светлой и уютной.
    Инфраструктура:
    Локация и инфраструктура:
    Вся необходимая инфраструктура в шаговой доступности:
    · ТЦ «Континент», Троицкий Сквер.
    · Спорткомплекс «Заря», ДК «Сибтекстильмаш».
    · Поликлиника №11, Центр микрохирургии глаза.
    · Детские сады, школы, продуктовые магазины.
    Транспорт:
    Отличная транспортная развязка: 3 вида общественного транспорта (трамвай, автобус, маршрутка). До метро (пл. Карла Маркса) — 20 минут. До центра города — 10 минут на машине или такси.
    Условия продажи:
    Юридическая чистота:
    Чистая продажа (один собственник, никто не прописан).
    Звоните сейчас, чтобы назначить просмотр! Обсудим цену при встрече с серьезным покупателем.

Актуальные новости про недвижку в нашем телеграм-канале: ПРОнедвижку

Похожие квартиры

По цене
По площади
По расположению