2-комн. квартира на ул. Норильская, 52а

Идентификатор: 483909   Дата обновления: 05-05-2026

124
Показать на карте

Дополнительная информация

  • Описание:
    Предлагаем купить двухкомнатную крупногабаритную квартиру в новом ЖК «Родники». Квартира стильная, с новым капитальным ремонтом - готовое пространство для жизни!

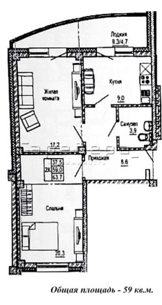
    Общая площадь - 59 кв.м. Комнаты просторные и раздельные (17,2 кв.м./20,3 кв.м.) - на две стороны, что считается уникальным преимуществом! Кухня — 9 кв.м., большой коридор — 8,6 кв.м. Балкон остеклен, полы в кафеле, квадратура (9,3 кв.м.) позволит организовать на нем дополнительную жилую комнату.

    Капитальный ремонт «под ключ»: выполнены все черновые и чистовые работы. Идеально ровные стены, продуманное освещение, стильная отделка. Для удобства пространства сделана перепланировка — узаконена.
    Качественная входная дверь, межкомнатные двери. В санузле новая сантехника, стены и пол - керамогранит. Установлен кондиционер.

    Новому хозяину остаётся современный гарнитур с полноценной встроенной техникой (вытяжка, варочная панель, духовой шкаф, посудомоечная машина). Отдельного внимания требует монолитная столешница и раковина из природного камня: не впитывает, не царапается, легко моется, дорого и на века! Всё, чтобы готовить с удовольствием.
    Встроенные прихожая с системой хранения и два шкафа — купе с зеркалами (в спальне и прихожей/гостиной). Наличие новой мебели и техники позволит Вам сэкономить финансы, время и нервы на их подбор и установку!
    Придомовая территория:
    Монолитно-кирпичный дом — это отличная звукоизоляция от соседей и теплосбережение. В подъезде грузовой и пассажирский лифты, керамогранит, домофон. Двор огорожен по периметру, установлено видеонаблюдение, есть современные детская и спортивная площадки.
    Инфраструктура:
    Инфраструктура развита: рядом с домом детский сад, в шаговой доступности остановка, магазины и аптеки, новая школа в 5 остановках от дома.
    Условия продажи:
    Чтобы увидеть квартиру и оценить качество ремонта - звоните сегодня и записывайтесь на просмотр! Квартира ждёт своего хозяина!

Актуальные новости про недвижку в нашем телеграм-канале: ПРОнедвижку

Похожие квартиры

По цене
По площади
По расположению