3-комн. квартира на ул. Мичурина, 23а

Идентификатор: 483460   Дата обновления: 13-04-2026

173
Показать на карте

Дополнительная информация

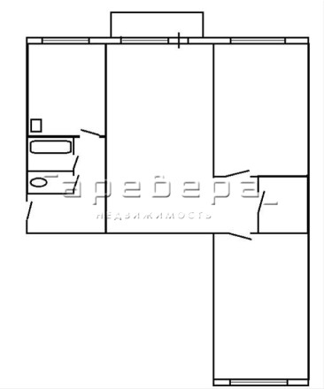
  • Описание: Предлагаю купить 3-х комнатную квартиру, улучшенной планировки. В квартире поменяны трубы холодной и горячей воды, установлены счётчики, алюминиевые радиаторы. Остальное требует ремонта. Планировка вагончиком, на разные стороны, между спальнями вместительная кладовка. Санузел раздельный. Электроплита. Квартира тихая, соседей не слышно, тепло.
    Придомовая территория: Здание расположено вдали от дороги, во дворах пятиэтажек.
    Инфраструктура: Дом находится в районе с развитой инфраструктурой, все в шаговой доступности. Удобная транспортная развязка.

Актуальные новости про недвижку в нашем телеграм-канале: ПРОнедвижку

Похожие квартиры

По цене
По площади
По расположению