Нежилое помещение на ул. Гурского

Идентификатор: 474887   Дата обновления: 12-03-2026

105
Показать на карте

Дополнительная информация

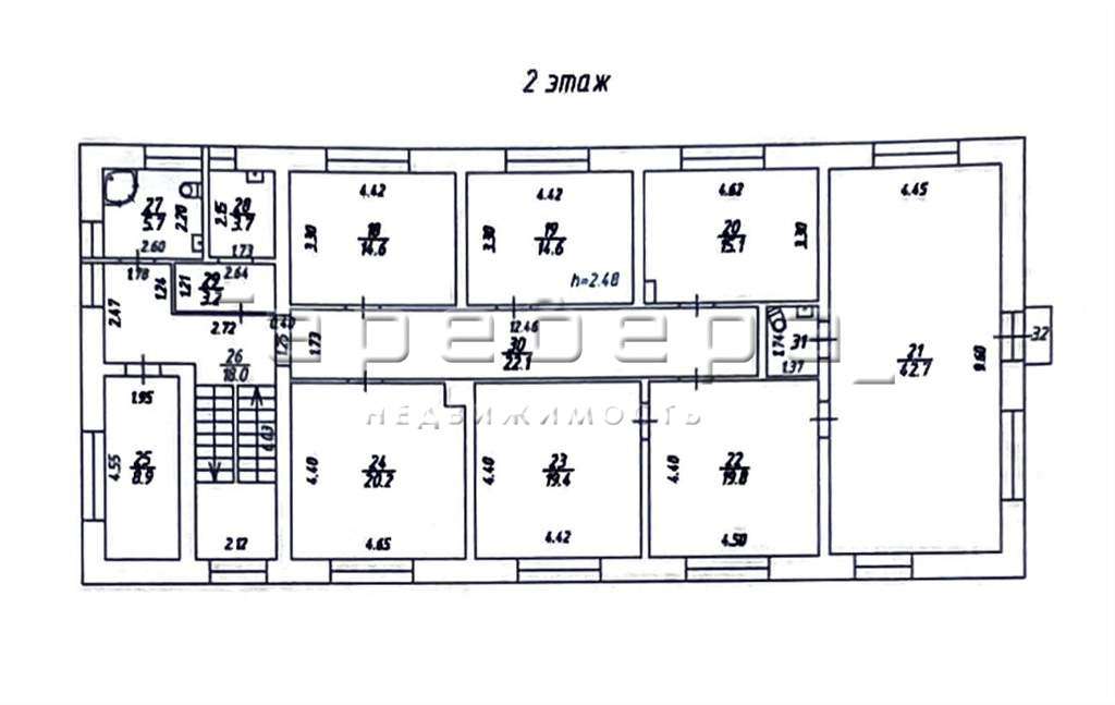
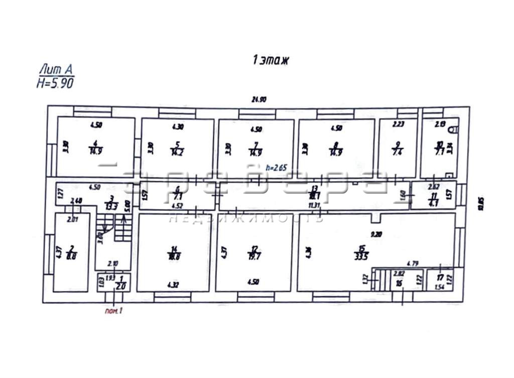
  • Описание: Продается гостиница общей площадью 415 кв. м, расположенная в живописном месте недалеко от города и всего в нескольких минутах езды от аэропорта. Это идеальное предложение для тех, кто хочет инвестировать в гостиничный бизнес или ищет многофункциональное коммерческое помещение.

    Основные характеристики:
    - Площадь: 415 кв. м.
    - Удобное расположение: близость к городу и аэропорту обеспечивает постоянный поток гостей
    - Живописная окружающая среда: отличное место для отдыха и релаксации


    Гостиница почти полностью оборудована и готова к приему гостей. В здании предусмотрены все необходимые удобства, включая комфортабельные номера, зону отдыха и парковку.

    Однако, если у вас есть другие планы на использование этого здания, его конструкция и расположение позволяют легко адаптировать помещение под другой вид деятельности. Это может быть офисный центр, медицинское учреждение, учебное заведение или даже жилой комплекс.

    Не упустите возможность приобрести универсальный объект недвижимости с отличным потенциалом для развития вашего бизнеса! Свяжитесь с нами для получения дополнительной информации и организации просмотра.

Актуальные новости про недвижку в нашем телеграм-канале: ПРОнедвижку

Похожие объекты коммерческой недвижимости

По цене
По площади
По расположению