Здание на ул. Николаева

Идентификатор: 483546   Дата обновления: 12-03-2026

113
Показать на карте

Дополнительная информация

  • Описание: Предлагаем купить отдельно стоящее здание в Советском районе г. Красноярска.

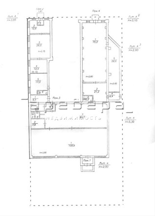
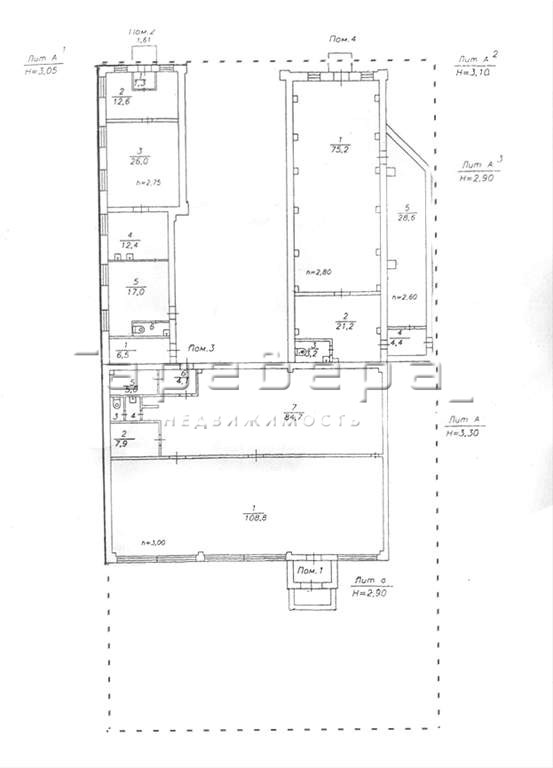
    Здание кирпичное, площадью 390,4 кв.м. Расположено на собственном земельном участке 9,5 соток (951 кв.м.). Земля в собственности, не в аренде!

    Объект полностью готов к работе. Ничего достраивать и согласовывать не нужно — въезжай и пользуйся.

    Коммуникации "под ключ": Городские сети. Два независимых ввода электричества (9 кВт + 15 кВт, есть договоры). Есть возможность увеличения мощности под любые задачи. Центральное отопление, холодная вода, горячая вода от бойлера.

    Земля в собственности: Вы получаете не просто стены, а полноценный участок с возможностью развития.

    Действующий бизнес: Продажа возможна вместе с действующим бизнесом – хостел с активной клиентской базой и торговое предприятие с госконтрактами.

    Закрытый внутренний двор.
    Собственная парковка для сотрудников/гостей/клиентов. (10 мест)
    Обустроена площадка под ТКО (договор есть).
    Видеонаблюдение по периметру и внутри.
    Сплит-системы в помещениях.


    Перспектива роста: Высота потолков позволяет надстроить второй этаж — увеличиваете полезную площадь почти в 2 раза без покупки новой земли.

    Характеристики:
    • Общая площадь: 390,4 м? (1 этаж).
    • Высота потолков: 2,6 м.
    • Отделка: офисная/складская (универсальная).
    • Вход: отдельный, с улицы.

    Локация:
    3 мкрн Зеленой рощи. Рядом сквер Космонавтов, остановки общественного транспорта. 

    Назначение:
    Подойдет под любой вид деятельности: офис, медицинский центр, стоматология, магазин, склад, производство, мини-гостиница (уже работает!), хостел, аптека.

    Варианты покупки:
    Здание можно купить и получать прибыль от аренды действующего бизнеса Здание можно выкупить вместе с бизнесом Можно купить просто здание, бизнес съедет.

    По всем вопросам звоните!

Актуальные новости про недвижку в нашем телеграм-канале: ПРОнедвижку

Похожие объекты коммерческой недвижимости

По цене
По площади