Нежилое помещение на ул. Телевизорная

Идентификатор: 476792   Дата обновления: 22-12-2025

222
Показать на карте

Дополнительная информация

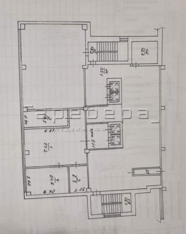
  • Описание: Предагаем к продаже нежилое помещение в Выставочно-деловом центре Mix Max. Помещение продается с действующей арендой ! Помещение расположено на 5 этаже, окна выходят на ТК «На Свободном». Помещение состоит из просторного зала 54,2 кв.м и двух кабинетов 19,5 и 24,6 кв.м, есть подсобное помещение 8,9 кв.м. Сделан ремонт, есть кондиционер. Проведен интернет, круглосуточная охрана, пожарная сигнализация, система звукового оповещения. Данное помещение отлично подойдет под офис , салон красоты и др.
    Инфраструктура: Инфраструктура района высокоразвита, большая проходимость , много мест для парковки, рядом ТК «На Свободном», парк Троя, множество административных зданий, в самом ВДЦ Mix Max расположена кафе и кофейни, офисы с разнообразной сферой услуг, МФЦ Мои документы, ипотечный центр, тренажерный комплекс, магазины и др. Рядом находятся остановки общественного транспорта, удобная транспортная развязка.
    Условия: Прямая продажа, один собственник, без обременений, подойдет любой расчет. Звоните! Отвечу на все интересующие вас вопросы, показ по договоренности. Помещение продается с действующими арендаторами !

Актуальные новости про недвижку в нашем телеграм-канале: ПРОнедвижку

Похожие объекты коммерческой недвижимости

По цене
По площади