Нежилое помещение на ул. Караульная

Идентификатор: 481621   Дата обновления: 24-03-2026

161
Показать на карте

Дополнительная информация

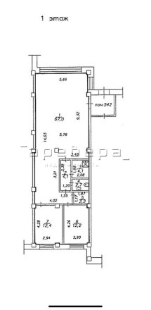
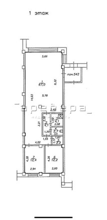
  • Описание: Помещение с АРЕНДАТОРОМ! Продам универсальное нежилое помещение с отдельным входом в Центральном районе мкр. Покровка. Первая линия. Много парковочных мест. Помещение имеет функциональную планировку : большой , правильной формы зал 67 кв.м, два кабинета, две подсобные комнаты, санузел. Высота потолков 3 м. Большие окна на две стороны. Помещение подойдет под любой вид деятельности. Все коммуникации центральные.
    Условия: Прямая продажа, один собственник, без обременений.

Актуальные новости про недвижку в нашем телеграм-канале: ПРОнедвижку

Похожие объекты коммерческой недвижимости

По цене
По площади