Нежилое помещение на пр-т им. газеты Красноярский Рабочий

Идентификатор: 481304   Дата обновления: 03-04-2026

176
Показать на карте

Дополнительная информация

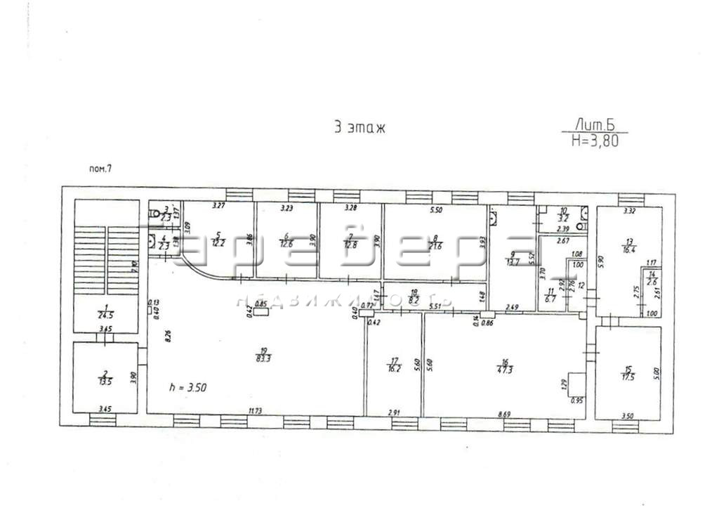
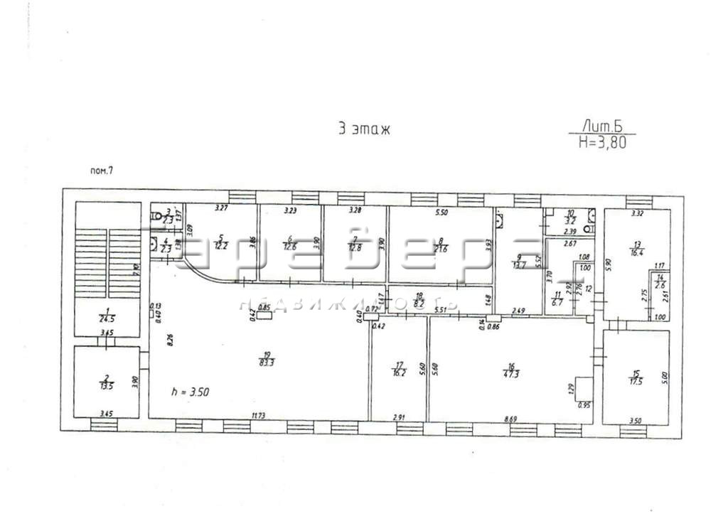
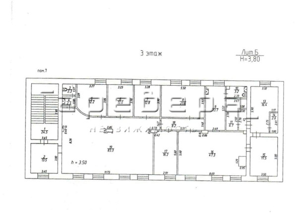
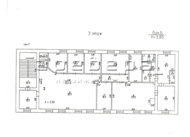
  • Описание: Продаем нежилое помещение площадью 320 кв.м.
    Рассмотрю варианты РАССРОЧКИ и ОБМЕНА.
    Можно перестроить в апартаменты или сделать отдельные кабинеты и сдавать в аренду.

    Дом стоит на первой линии пр.Красноярский рабочий.
    Через дорогу расположен торговый центр Красноярье, за домом расположен Институт Цветных Металлов.
    В здании уже находятся якорные арендаторы — Пятерочка, Фикс Прайс, Ставки на Спорт, Мебельная компания.

    Помещение с высокими потолками 3,80 м. Здесь можно снести все перегородки, оставив только несущие колонны. Кабинеты имеют хорошие площади — 13, 16, 21, 47 метров.
    Планировку можно перестроить под свои потребности.
    Перекрытия железобетонные.

    Технические условия — электричество 75кВт, напряжение 220Вт.

    Готовы предложить продажу всего здания, а также аренду всего 3 этажа одному арендатору.

Актуальные новости про недвижку в нашем телеграм-канале: ПРОнедвижку

Похожие объекты коммерческой недвижимости

По цене
По площади
По расположению