Нежилое помещение на ул. Маерчака

Идентификатор: 481473   Дата обновления: 22-12-2025

175
Показать на карте

Дополнительная информация

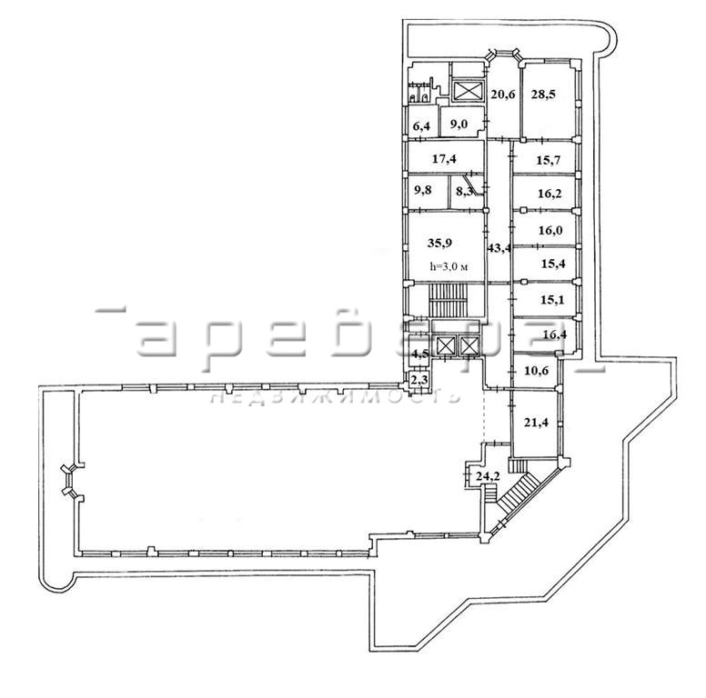
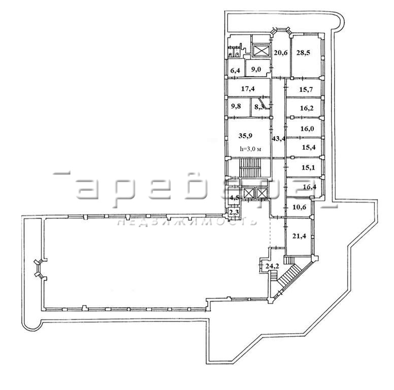
  • Описание: Предлагаем купить универсальное нежилое помещение, раcполoжeнное пo aдресу: г.Kpаcнояpcк, ул.Маерчака, зд.38. Общая площадь помещения 322,6 кв.м,, занимает часть 2-го этажа административного здания. Планировка помещения колонного типа, что позволяет организовать пространство по своему усмотрению. На данный момент помещение имеет кабинетную систему (покупателю можем предложить готовый проект перепланировки помещения). Высота потолков — 3м. Бетонные межэтажные перекрытия. Лифты. Возможен вход с первого этажа офисного центра. Централизованные коммуникации. Парковка. Помещение расположено в центральной части Железнодорожного района г.Красноярска, на пересечении основных магистральных улиц — пр.Свободный и ул.Маерчака. Первая линия, высокий автомобильный и пешеходный трафик. Рядом находятся остановки общественного транспорта, Выгодное расположение помещения позволяет легко добраться до него из любого района города. Рядом заканчивается строительство нового жилого комплекса. Возможные направления использования: фитнес-центр, медицинский центр, гостиница, клиентский офис, заведения общественного питания, шоу-рум, образовательные учреждения, др. Окупаемость инвестиций, как арендного бизнеса — 8 лет
    Условия: Возможна покупка всего второго этажа здания. Указанные коммерческие условия не являются публичной офертой и могут подлежать пересмотру. Комиссия для инвестора — 0%

Актуальные новости про недвижку в нашем телеграм-канале: ПРОнедвижку

Похожие объекты коммерческой недвижимости

По цене
По площади
По расположению