Нежилое помещение на ул. 78 Добровольческой Бригады

Идентификатор: 481430   Дата обновления: 27-02-2026

142
Показать на карте

Дополнительная информация

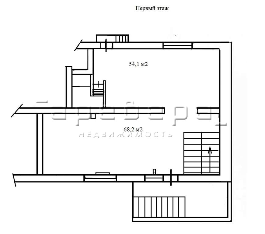
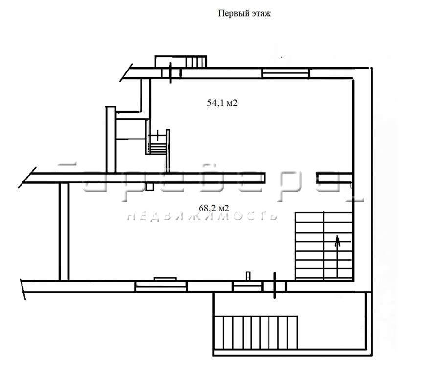
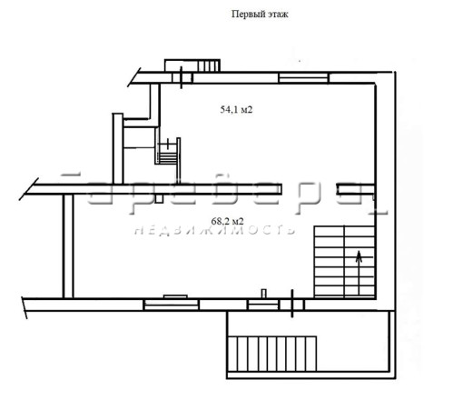
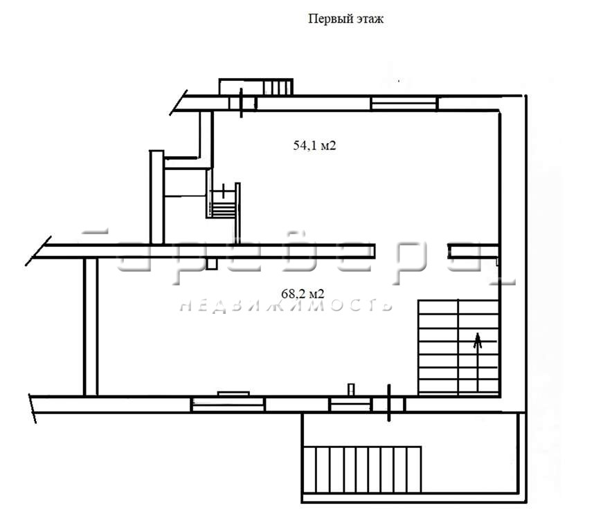
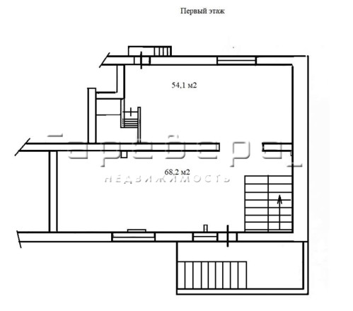
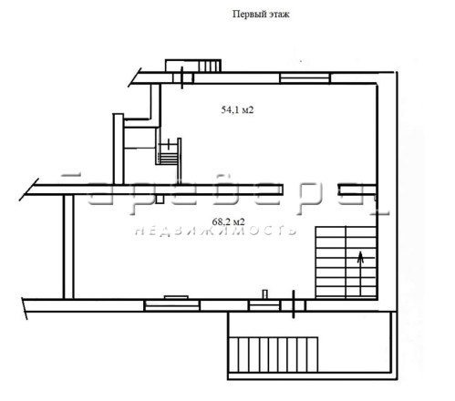
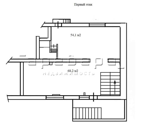
  • Описание: Предлагаем снять в аренду универсальное нежилое помещение, расположенное по адресу: г. Красноярск, 78 Добровольческой бригады, 14 Б Характеристики помещения: • помещение занимает два уровня: первый этаж и подвальное помещение; • предусмотрены отдельный вход с первого этажа и два выхода из подвального помещения; • пространство первого этажа разделено на два просторных зала, подвальное помещение представлено одним просторным залом с подсобным помеещнием; • высота потолков первого этажа — 3 м, нижний уровень — 2,5 м; • полы — массив сосны; • стены — под покраску; • кондиционирование первого этажа и приточная вентиляция в подвальном помещении; • централизованные коммуникации; • свободная парковка на прилегающей к помещению территории
    Инфраструктура: Помещение расположено в центральной части мкрн.Взлетка с высоким пешеходным и автомобильным трафиком. Хорошие подъездные пути. Удобный выезд в любую точку города и за его пределы. Рядом расположены остановки общественного транспорта.
    Условия: Условия аренды: отдельно оплачиваются электроэнергия, водоснабжение и. водоотведение. Арендатор услуги агентства недвижимости не оплачивает.

Актуальные новости про недвижку в нашем телеграм-канале: ПРОнедвижку

Похожие объекты коммерческой недвижимости

По цене
По площади
По расположению