Офис на ул. Академика Киренского

Идентификатор: 481787   Дата обновления: 10-02-2026

393
Показать на карте

Дополнительная информация

  • Описание: По документам - НЕЖИЛОЕ!

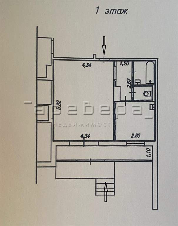
    Предлагаем купить нежилое помещение, общей площадью 44,1 кв.м.
    Адрес: ул.Киренского 69

    В продаже помещение 44,1 кв.м. расположенное в Октябрьском районе Красноярска. Дом панельный, 16 этажей, построен в 2010 году застройщиком КБС. Нежилое помещение располагается на первом этаже и имеет два входа, это - отдельный вход (крыльцо), а так же второй вход из подъезда. Без перепланировок, две комнаты-см.план, требуется ремонт.
    Придомовая территория: Открытая наземная парковка. Видеонаблюдение.
    Инфраструктура: Активно развивающийся район.
    Условия: Без обременений.

Актуальные новости про недвижку в нашем телеграм-канале: ПРОнедвижку

Похожие объекты коммерческой недвижимости

По цене
По площади
По расположению