Здание на ул. Партизана Железняка

Идентификатор: 448956   Дата обновления: 30-03-2026

170
Показать на карте

Дополнительная информация

  • Описание: Предлагаем к продаже отдельно стоящее здание на ул.Партизана Железняка,17 ,стр.31 в районе СУБАРУ -ЦЕНТР КРАСНОЯРСК.
    ОБЪЕКТ СДАН В ДОЛГОСРОЧНУЮ АРЕНДУ, ПРИНОСИТ СТАБИЛЬНЫЙ ДОХОД.
    Здание расположено на земельном участке, оформленном в долгосрочную аренду.
    Материал стен здания монолитный железобетон и сэндвич-панели.
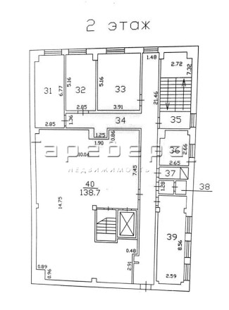
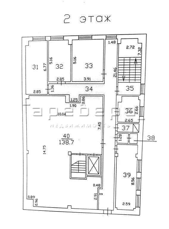
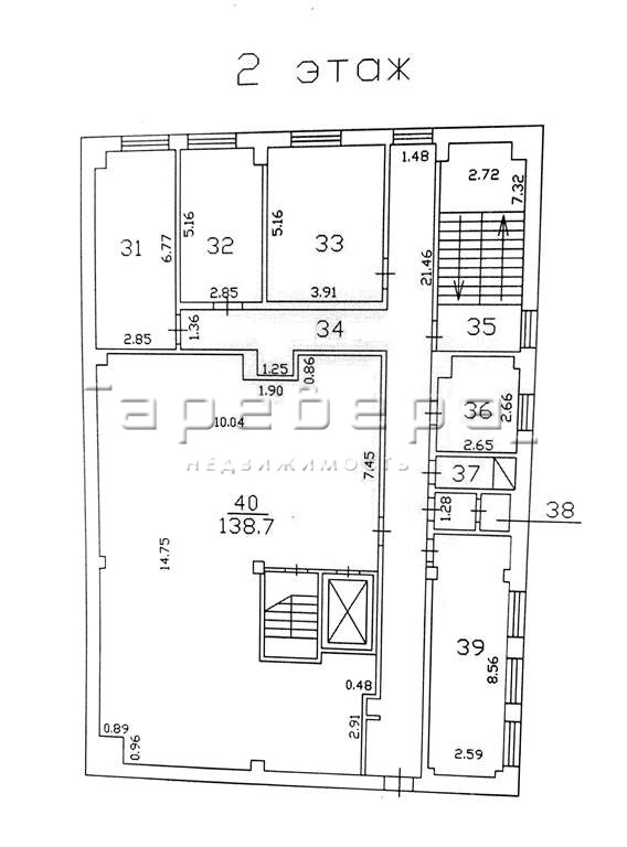
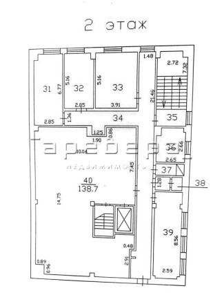
    Общая площадь объекта составляет 1953,8 метров, состоит из трех уровней :

    • - цоколь
    • - 1-й этаж
    • - 2-й этаж и антресоль.
    Год ввода в эксплуатацию 2015 год.
    Данное сооружение можно использовать ,как комплекс по техническому обслуживанию и ремонту автомобилей. Для этого предусмотрены лифты и подъемники.
    -В цоколе расположен тепловой узел и вентиляционная камера и электро щитовая,а также водомерный узел.
    Сделаны наливные полы с полимерным покрытием.
    - На первом этаже предусмотрено помещение для ремонта автомобилей и зона лаборатории для смешивания красок,а также место для монтажа подъемников.
    - второй этаж состоит из офисных помещений, большого склада и зоны кухни-столовой.
    Отопление — централизованное, водоснабжение - холодная и горячая вода городская, канализация- септик. Электричество - 70 кВт.

Актуальные новости про недвижку в нашем телеграм-канале: ПРОнедвижку

Похожие объекты коммерческой недвижимости

По цене
По площади
По расположению