Здание на ул. Свердловская

Идентификатор: 480147   Дата обновления: 13-04-2026

145
Показать на карте

Дополнительная информация

  • Описание: Предлагаем купить отдельно стоящее здание 2015 года постройки, расположенное по адресу: г.Красноярск, ул.Свердловская, 3а.

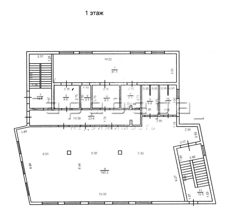
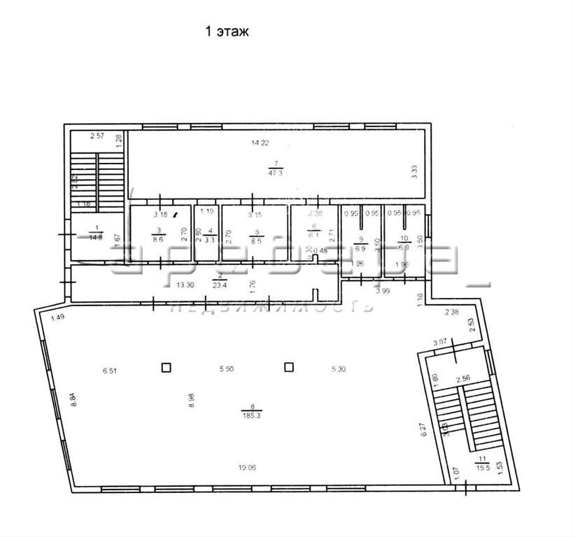
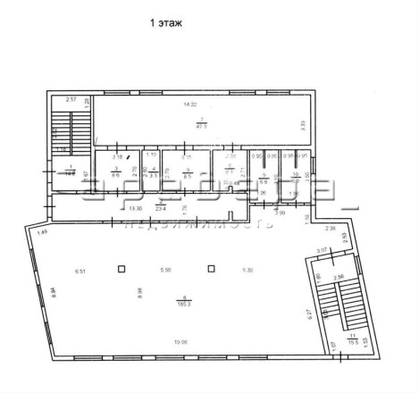
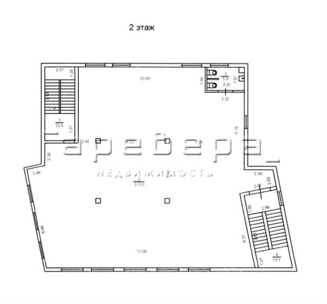
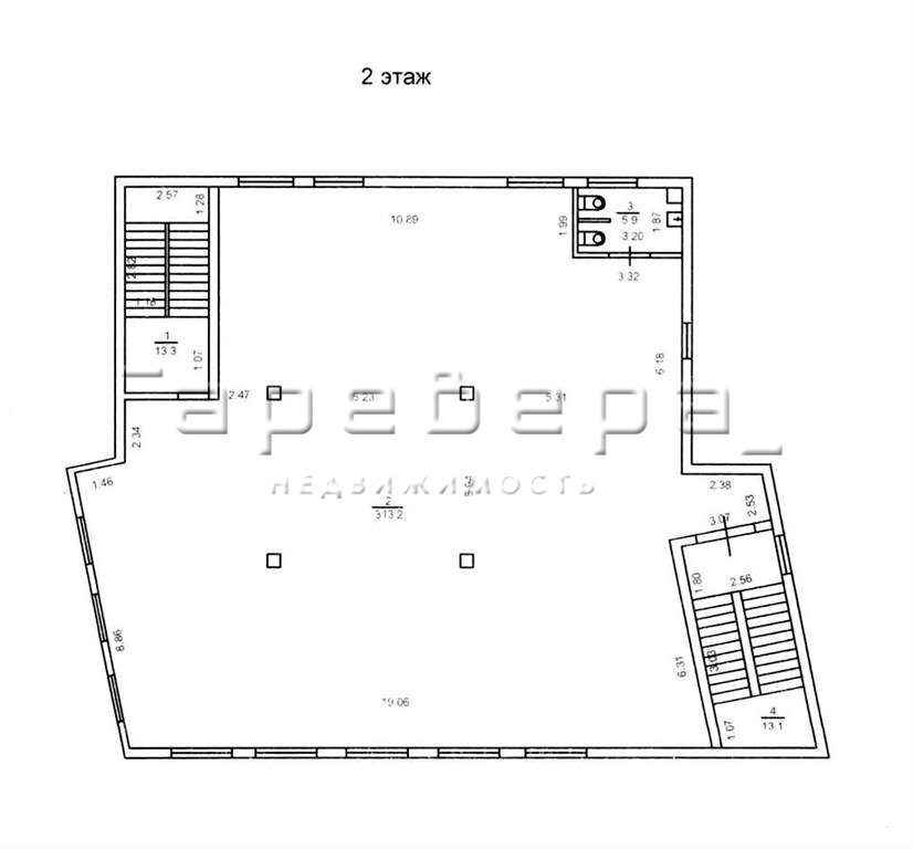
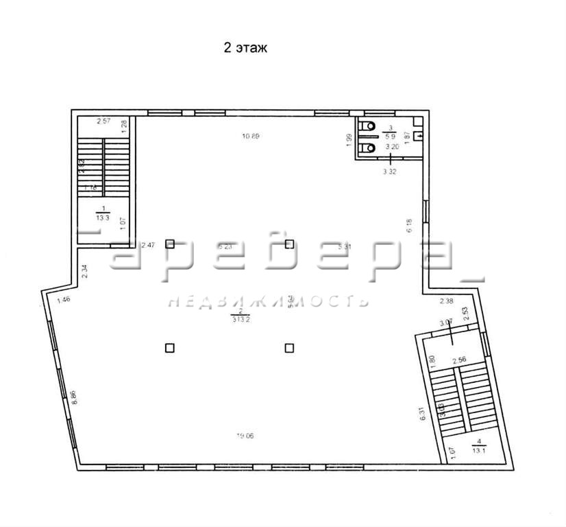
    Здание площадью 1362,4 кв.м. (4 этажа, из них 1 — цокольный) расположено на земельном участке 638 кв.м. (в собственности).

    Технические характеристики здания:
    • материал стен — кирпич,
    • меж-этажные перекрытия — бетонные плиты,
    • внешняя отделка — керамогранит,
    • конструкция колонного типа,
    • половое покрытие — керамическая плитка,
    • люминесцентное освещение,
    • приточная вентиляция,
    • кондиционирование,
    • система видео-наблюдения,
    • пожаро-охранная сигнализация,
    • централизованные коммуникации (отопление, водоснабжение, канализация),
    • выделенные электрические мощности — 45 кВт.

    Градостроительный регламент земельного участка — территориальная зона делового, общественного и коммерческого назначения (ОД 1).
    Виды разрешенного использования:
    • размещение административных объектов, финансово-кредитных организаций, издательств, объектов торговли, общественного питания, иных объектов делового назначения,
    • размещение гостиниц,
    • размещение объектов здравоохранения,
    • размещение научно-исследовательских учреждений,
    • размещение объектов среднего профессионального и высшего профессионального образования,
    • размещение объектов спортивно-оздоровительного назначения, • др.


    Инфраструктура: Расположение здания на первой линии с хорошим обзором делает его легко узнаваемым для посетителей. Наличие парковки — привлекательным для мобильных сотрудников и клиентов. Здание удобно расположено относительно магистральных улиц А.Матросова и Свердловской, что позволяет легко добраться до него из любого района города и пригородных территорий. Рядом расположены остановки общественного транспорта с хорошим графиком движения.

    Условия: Возможна покупка данного здания в качестве инвестиций в арендный бизнес с окупаемостью 8 лет.
    Для получения более подробной информации и осмотра здания предлагаем Вам позвонить по указанному в объявлении телефону.
    Покупатель услуги агентства недвижимости не оплачивает.

Актуальные новости про недвижку в нашем телеграм-канале: ПРОнедвижку

Похожие объекты коммерческой недвижимости

По цене
По площади
По расположению